Здравствуйте. Подскажите, пожалуйста, как быть? Я в тупике. Купила дачу на материнский капитал своим детям 12 декабря 2015 года. На тот момент дом уже год как стоял построенным. Сейчас мне пришло вот такое уведомление. Я в разводе, состою в центре занятости как безработная, доходы минимальные. Что мне делать? И продать его не могу, и передвинуть не могу, так как это выпадает на немалые затраты.
Строительство в охранной зоне газопровода
Богушевский Ярослав 23 янв., 14:53
Народный консультант
Советуем Вам со всеми правоустанавливающими документами на дом и землю, а также с обращением Владимирского ЛПУМГ обратиться в местную администрацию. Снести дом Вас может обязать только суд!
Гость 247329-1331 22 янв., 10:02
anonim-247329-1331 (Новороссийск)
Здравствуйте. Участок ИЖС с 2013 года, без обременений. Построили коробку, начинаем оформление, а разрешение не брали. При получении градостроительного плана обнаружили обременение, так как участок попадает в охранную зону объектов культурного наследия. Что делать?
Богушевский ЯрославГость 247329-1331 23 янв., 12:17
Народный консультант
Добрый день. Все зависит от того, зафиксировали ли археологи то, что дом построен. Указано ли это в акте, протоколе археологов? Если не зафиксировано, то подаете сведения о раскопках в их главную инстанцию для получения заключения о возможности хозяйственного освоения земли и регистрируете дом. Если же факт того, что дом построен зафиксирован, то, скорее всего, Вам откажут в регистрации. И Вам необходимо будет обратиться с иском в суд на признание права собственности на дом.
Гость 247329-1331Богушевский Ярослав 25 янв., 14:40
anonim-247329-1331 (Новороссийск)
Да, факт зафиксирован. При раскопках они показали, что дом есть. Я до этого обращалась в администрацию. Сказала, что фундамент уже поставили. Показали, что провели их до того, как узнали о необходимости раскопок, но администрация требует именно это заключение. Сказали, если будет заключение, то разрешение на строительство выдадут. Спасибо за ответ.
Гость 247595-2028 24 авг., 16:32
anonim-247595-2028
Здравствуйте. Более пяти лет назад мы получили участок земли по программе для многодетных семей. Теперь 6 соток в собственности у пяти членов семьи. Район застраивается. Несколько семей уже живут. Возле нас соседи строятся, получив разрешение. Мы начали стройку без разрешения на строительство. В этом году собрали документы на разрешение на строительство. Кроме остальных документов в архитектурном отделе попросили взять справку у местного газоперерабатывающего завода о соблюдении охранной зоны. Они справку выдали о несоблюдении. Разрешение не дают, так как якобы изменились нормы: 2000 м вместо 1500 м (у нас около 1750 м) от какого-то объекта. В связи с этим и администрация отказывает в выдаче разрешения.
Богушевский ЯрославГость 247595-2028 25 авг., 16:48
Народный консультант
Какая у Вас категория и вид разрешенного использования земельного участка? Пришлите справку, которую они Вам выдали. Какие документы у Вас есть? ГПЗУ, СПОЗУ?
Гость 247831-2049Богушевский Ярослав 26 авг., 22:41
anonim-247831-2049 (Казань)
Земельный участок. Категория земель: земли населенных пунктов. Разрешенное использование: для индивидуального жилищного строительства. Эта информация из свидетельства о регистрации права (получен по федеральной программе бесплатных участков под строительство для многодетных семей). Есть ГПЗУ, свидетельство о регистрации права (5 по 1/5, в том числе и у детей), заявление, кадастровая выписка, СПОЗУ. В справке сказано:
"Рассмотрев Ваше заявление о согласовании строительства индивидуального жилого дома с кадастровым номером.. сообщаем, что управление "Татнефтегазпереработка" ПАО "Татнефть" не может согласовать строительство жилого дома в связи с тем, что участок находится на расстоянии 1700 метров от оси продуктопровода ДУ150 (согласно СП 36.13330.2012 "Свод правил. Магистральные трубопроводы. Актуализированная редакция СНиП 2.05.06-85* — минимальное допустимое расстояние до жилой застройки, расположенной в пределах города и поселения городского типа должно составлять не менее 2000 м)".Эта редакция СНиП действует совсем недавно. Выделение земель производилось с учетом действующих на то время правил, и участки не нарушали охранную зону газопровода. Но правила изменились (расстояние увеличили) и разрешения перестали выдавать, несмотря на то, что в районе многие получили разрешения, некоторые построились и живут, много строящихся участков, и тех, кто еще не успел получить разрешение. Проведен свет, согласно федеральному закону обустраиваются дороги (щебенка). Весь район — участки, полученные по программе бесплатных участков под строительство для многодетных семей. Соответственно, у большинства участков, как и у нас, зарегистрированы в долевой собственности на всех членов многодетных семей.
Богушевский ЯрославГость 247831-2049 1 сент., 15:26
Народный консультант
Добрый день. Вы обращались в администрацию по этому поводу?
Гость 247831-2049Богушевский Ярослав 5 сент., 20:44
anonim-247831-2049 (Казань)
Добрый день. Да, обращались, но безрезультатно. Говорят, что явление на данный момент массовое, формально разрешение выдать не могут (не хотят). Предлагают ждать возможного изменения в законодательстве по этому поводу.
Богушевский ЯрославГость 247831-2049 11 сент., 15:34
Народный консультант
В таком случае Вы можете построить дом и зарегистрировать его как нежилой, но адрес такому дому не присваивают. Соответственно, Вы не сможете в нем прописаться. Либо можете достроить дом, сделать досудебную строительную экспертизу и по исковому заявлению обратиться в суд с целью узаконивания дома.
Гость 247831-2049Богушевский Ярослав 23 окт., 19:25
anonim-247831-2049 (Казань)
Спасибо, всего доброго Вам.
Гость 247292 5 дек., 10:06
anonim-247292 (Воскресенск)
Добрый день. У нас участок в аренде, хотим вывести его в собственность. ГПЗУ и разрешение на строительство получили. Залили фундамент, и оказалось, что не соблюли норму по ГПЗУ, где прописан отступ 30 м от лесфонда. У нас по факту получилось 24-25 м. Сможем ли мы поставить на учет этот дом? Кто будет проверять этот отступ? И какие проблемы в будущем нас могут ожидать?
Богушевский ЯрославГость 247292 6 дек., 21:48
Народный консультант
Добрый день, подскажите ВРИ участка. Пришлите ГПЗУ.
Гость 247292Богушевский Ярослав 7 дек., 08:33
anonim-247292 (Воскресенск)
ИЖС. ГПЗУ, к сожалению, сейчас при себе не имею. Но в нём отмечено 30 м от лесного фонда. Соответственно сформировано пятно застройки от этой линии. Мы как раз за неё вылезли. Получилось, что мы в пределах участка, но за пределами пятна застройки на 5-6 м.
Богушевский ЯрославГость 247292 8 дек., 20:21
Народный консультант
Отправьте, когда будет удобно. И лучше еще указать фактическую ситуацию по пятну застройки.
Гость 247580-361 14 дек., 16:14
anonim-247580-361 (Москва)
Добрый день. Участок под ИЖС, 12 соток. Разрешение на строительство дома от "Мосгаза" от 2014 г. Захотели продать участок переуступкой прав. Но администрация города отказала в переуступке, мотивируя отказ тем, что участок находится в зоне отчуждения. Хотя разрешение было выдано, и всё было согласовано. Теперь же зона отчуждения увеличилась, и администрация не даёт разрешение на строительство. При этом в выписке ЕГРН нет обременений. Как быть? Суд?
Богушевский ЯрославГость 247580-361 14 дек., 18:16
Народный консультант
Добрый день. Пришлите ГПЗУ, разрешение и отказ администрации.
Гость 247580-361Богушевский Ярослав 18 дек., 12:44
anonim-247580-361 (Москва)
Добрый день. Градостроительного плана на руках у нас нет. Извиняюсь, ввёл в заблуждение. Но есть акт выбора земельного участка в аренду, где установлены визы согласования с "ТСК Мосэнерго", электриками, "Ростелеком", ГУП МО "Мособлгаз". Но когда направили в администрацию города запрос на переуступку, пришёл отказ:
Вышеуказанный земельный участок не может использоваться по назначению, так как он полностью расположен в зоне минимальных расстояний от газораспределительной станции (ГРС) с подводящим газопроводом-отводом к ГРС ДУ-300 Рраб-5.4Мпа. Размещение и строительство каких-либо объектов в зоне минимальных расстояний от газораспределительной станции (ГРС) на данном участке категорически запрещено".Я посмотрел таблицу минимальных расстояний от оси газопровода до объекта. Там получается, если "ДУ-300", то минимальное расстояния 100 м (или вообще 75 м). У нас от оси до участка 120 м. Почему тогда администрация оказала в переуступке?
Богушевский ЯрославГость 247580-361 18 дек., 17:33
Народный консультант
Добрый день. Пришлите акт выбора и договор аренды.
Гость 247580-361Богушевский Ярослав 14 февр., 17:53
anonim-247580-361 (Москва)
Добрый день. Во вложении ГПЗУ, разрешение и отказ с администрации, акт выбора земельного участка в аренду, договор аренды. Если я файлы выложу в архиве, это приемлемо?
Богушевский ЯрославГость 247580-361 15 февр., 16:28
Народный консультант
Добрый день. С документами ознакомились. Хотим уточнить, в чем заключается вопрос? Вы не хотите отказываться от аренды или хотите получить с администрации компенсацию.
Гость 247580-361Богушевский Ярослав 15 февр., 16:34
anonim-247580-361 (Москва)
Добрый день! Мы не хотим отказываться от аренды. У нас есть ещё год аренды, и мы хотели бы участок продать переуступкой прав. И считаем, что участок не находится в минимальной зоне отчуждения, хотя в администрации утверждается обратное.
Богушевский ЯрославГость 247580-361 18 февр., 21:02
Народный консультант
А у Вас есть уже покупатель? Это не должно препятствовать регистрации переуступки.
Гость 247580-361Богушевский Ярослав 19 февр., 12:00
anonim-247580-361 (Москва)
Добрый день! Спасибо за комментарий. Покупатели пока думают. Но есть 2 момента по переуступке:
- Когда мы консультировались у одного юриста, он сказал, что если договор аренды сроком на 5 лет и меньше, то якобы необходимо согласие арендодателя (администрации) на переуступку. Так ли это?
- Хорошо, мы продадим переуступкой участок, но покупатель получит от нас участок с "проблемами". Ему могут отказать в постройке дома, например. И тогда добросовестный покупатель может подать на нас в суд, не так ли?
Богушевский ЯрославГость 247580-361 24 февр., 12:53
Народный консультант
Согласие нужно обязательно. Если не будет визы с администрации на переуступку, договор не зарегистрируют.
Гость 248291Богушевский Ярослав 24 февр., 18:08
anonim-248291
Но администрация отказывается подписывать "переуступку"! Что в таком случае можно сделать?
Богушевский ЯрославГость 248291 26 февр., 14:33
Народный консультант
По почте оповестите администрацию, приложите квиток отправки и тест на регистрацию. На усмотрение регистратора могут и зарегистрировать.
Гость 248291Богушевский Ярослав 26 февр., 23:38
anonim-248291
Извините, но Ваш ответ я не понял.
Богушевский ЯрославГость 248291 1 март, 15:49
Народный консультант
Есть порядок согласования с администрацией через почту. У Вас с оплатой аренды нет задержек? Также можно подать в суд и по суду выяснять. Конечно, такой участок неправильно продавать, не сказал об этом. Тогда Вам нужно будет обратиться в суд.
Гость 247580-361Богушевский Ярослав 1 март, 17:48
anonim-247580-361 (Москва)
Спасибо! За аренду оплата производится своевременно. Скажите, пожалуйста, каковы шансы через суд заставить администрацию пойти на согласие по переуступке?
Богушевский ЯрославГость 247580-361 3 март, 09:24
Народный консультант
Добрый день. Свяжитесь с нами по почте pravo@pravozem.ru, много косвенных вопросов.
Гость 247580-361Богушевский Ярослав 14 март, 11:36
anonim-247580-361 (Москва)
Добрый день! По почте связался.
Гость 247671-6051Богушевский Ярослав 22 июня, 17:53
anonim-247671-6051 (Москва)
Здравствуйте, на территории участка к дому под землёй подведена газовая труба, хотим построить гараж, и вот надо сколько то отступать от подземной линии и можно ли строить на этой газовой трубе? Сама магистраль в 2х метрах от забора и там где то кран, на табличках у дома стоит низкое давление.
Богушевский ЯрославГость 247671-6051 23 июня, 11:21
Народный консультант
Добрый день, строительство капитальных строений на данном участке запрещено, пятна застройки нет. Поэтому строительство возможно только после согласования с газовой службой.
Гость 248823 28 июня, 15:54
anonim-248823
Добрый день! Хочу купить ЗУ 680 м2 земли населенных пунктов, ВРИ ИЖС. По выписке ЕГРН 6 м2 с краю имеют ограничения прав на земельный участок, предусмотренные статьями 56, 56.1 Земельного кодекса Российской Федерации, 50.00. 2.513, Свидетельство о государственной регистрации права № 0221691 от 13.10. 2005. Попыталась выяснить с чем связано это ограничение заказав выписку соседнего участка, как я поняла там проходит газораспределительная труба. Подскажите пожалуйста, возможно ли получить разрешение на строительство на оставшемся участке земли и нужно ли запрашивать разрешение у газовиков? ЕГРН прикрепляю
Богушевский ЯрославГость 248823 29 июня, 16:55
Народный консультант
Добрый день, для того, чтобы четко понимать выдадут ли Вам разрешение на строительство или нет и где Вы можете строиться на своем участке, необходим градостроительный план земельного участка. Пришлите Ваш номер телефона для более подробной консультации
Гость 237272 30 авг., 16:14
anonim-237272
Добрый день, Ярослав, подскажите, одна организация возвела самострой на том месте где обеспечивали доступ к газовой трубе, они этот доступ закрыли, органы БТИ не могут пройти к этой трубку, осуществить обслуживание, данная организация не согласовали строителтство здания с ростехнадзором, по закону строителтство в диаметре (точно сколько метров не помню) от данной трубы запрещено. Решить все спокойно не получается, подскажите куда лучше обратиться и какие документы потребуются.
Богушевский ЯрославГость 237272 31 авг., 15:54
Народный консультант
Добрый день. Кому именно закрыли доступ? Какое назначение газопровода? По чьей земле проходит газовая труба?
Гость 237272Богушевский Ярослав 1 сент., 14:13
anonim-237272
Нам закрыли доступ, наша газовая труба среднего давления, через нее осуществляется отопление двух предприятий, в 1994 году был собран полный пакет документов для того чтобы проложить данную трубу, согласовано со всеми инстанциями. Труба на их земле, но только в этом году они возвели самострой непосредственно где находится эта труба, у нас договор с БТИ на обслуживание этой трубы. Данная организация (они арендаторы этого участка земли) не допускают БТИ для обслуживания, мотивируя это тем что "вы сейчас снесете нашу стену".
Богушевский ЯрославГость 237272 3 сент., 12:55
Народный консультант
Добрый день. Когда прокладывалась труба должно было быть заключено либо соглашение о сервитуте, либо наложены обременения на участок по которому она проходит. Стоит ли газопровод на учете как линейный объект? После прокладки вы должны были ввести его в эксплуатацию и поставить на учет.
Гость 268749 3 сент., 21:24
anonim-268749
Здравствуйте, помогите, пожалуйста) Дом у мужчины построен и введён в эксплуатацию много лет назад, построен прям на границе с участком соседки. По фасаду дома мужчины провели газопровод, но разрешение у соседки не взяли. Должны ли были брать разрешение у соседки? Теперь её беспокоит этот газопровод, и она возникает, что у неё никто разрешение не брал на проведение его (ссылаясь на то, что это граница территорий ипо сути газопровод по её территории проходит) Как выкрутиться из ситуации, что не было взято разрешение?
Богушевский ЯрославГость 268749 5 сент., 11:57
Народный консультант
Добрый день. Если газопровод проходит по участку соседки то согласие получать было необходимо. Сейчас это можно оформить сервитутом, если соседка не хочет добровольно договариваться. То сервитут придется устанавливать через суд. По ситуации, что не брали письменное разрешение аргумент один согласие получали, но устное. Поэтому соседка дот этого претензий и не предъявляла.
Гость 238009 23 апр., 17:23
anonim-238009
Добрый день! Что за законы такие! Мы тоже купили в ипотеку дом с участком земли. Сделали реконструкцию старого дома и хотели её узаконить. Администрация нам отказала, по причине отсутствия разрешения на реконструкцию. Наш участок полностью попадает в охранную зону ГРС. (у нас 121 метр до дома) В отказе нет ничего про охранную зону. Ждем суда. Какие у нас шансы? Заранее спасибо за ответ.
Богушевский ЯрославГость 238009 23 апр., 18:21
Народный консультант
Добрый день! пришлите отказ который Вы получили, почему Вы не получили разрешение перед началом реконструкции?
Гость 247565-4569 11 дек., 17:36
anonim-247565-4569 (Краснодар)
Здравствуйте, я в 2011 году получила разрешение на пристрой дома, теперь решили оформить и выяснилось что наш дом в охранной зоне. Ичто теперь делать и куда обращаться не знаем. Ведь когда брали разрешение и план нам об этом никто не сказал.
Сердобск, а не Санкт-Петербур г.
Богушевский ЯрославГость 247565-4569 12 дек., 18:40
Народный консультант
Добрый день! Какая именно охранная зона? разрешение на строительство у Вас действующее?
Гость 247879-3533 30 март, 23:46
anonim-247879-3533 (Москва)
Здравствуйте Ярослав. Я присоединяюсь ко всем благодарностям в Ваш адрес за толковые ответы на наши вопросы. Возможно Вы мне тоже поможете. С моим домом мне все понятно. Не понятно следующее: есть газгольдер, земля в СНТ, дом садовый, нарушения газгольдера градостроительные по отношению к своему дому (около 5ти м) и противопожарные (нет 15 м отступа от воздушных линий электричества), так как иначе никак. Что делать? Председатель новый и грозит прислать мне неприятности. Что он мне может сделать? Специалистов по этому вопросу я пока не встречала. Спасибо.
Богушевский ЯрославГость 247879-3533 31 март, 10:57
Народный консультант
Добрый день! Неприятности о которых говорит Ваш председатель- это комиссия из администрации, которые дадут свое заключение о законности размещения газгольдера на участке. Он приобретен и установлен соответствующими специалистами? У Вас сохранились документы на газгольдер, сертификат, договор купли-продажи?
Гость 247215-4207 16 июня, 07:21
anonim-247215-4207 (Якутск)
Добрый день! Подскажите пожалуйста по ситуации:в 2018 году получили градостроительный план и разрешение на строительство сроком 10лет, в зеленом пятне застройки поставили фундамент согласно спозу, далее у газовиков узнали что есть охранная зона газопровода (в град плане его не было), на нее частично дом попал, сделали соглашение о незастройке с газовиками, в 2020 году в новом градостроительном плане зеленое пятно застройки существенно уменьшилось, и получилось что наш дом на треть вышел из него, почему то увеличились отступы от красных линий. Как в таком случае поступать? Действительно ли наше разрешение на строительство?
Богушевский ЯрославГость 247215-4207 16 июня, 10:11
Народный консультант
Добрый день! Да Ваше разрешение на строительство действительно, но на практике администрация может придраться к пятну застройки в этом случае Вам придется обращаться в суд.
Гость 247041Богушевский Ярослав 17 июня, 03:03
anonim-247041
Значит надо попробовать подать уведомление об окончании строительства и если не согласуют то обращаться в суд? Какова вероятность что суд встанет на нашу сторону? Или можно попробовать подать на разрешение на отступление от предельных параметров?
Богушевский ЯрославГость 247041 17 июня, 10:47
Народный консультант
Добрый день! Да , другого выхода у Вас нет. Учитывая, что у вас действующее разрешение на строительство и согласие газовиков, шансы неплохие.
Надежда М 24 сент., 17:05
nm8932328 (Орехово-Зуево)
Вопрос:здравствуйте, смогут ли соседи узаконить пристройку, если газовая труба высокого давления 2 категории находится от фундамента в 5 метрах и рзрешения для пристройки у соседей не брали дом поделен на 3-х собственников.
Богушевский ЯрославНадежда М 24 сент., 17:51
Народный консультант
Добрый день! Пришлите кадастровый номер участка, и схему расположения дома на участке с указанием расстояния до трубы.
Надежда МНадежда М 25 сент., 09:04
nm8932328 (Орехово-Зуево)
Богушевский ЯрославНадежда М 25 сент., 10:56
Народный консультант
Нет без согласие всех дольщиков сосед не сможет зарегистрировать строение в обычном порядке, только при обращении в суд. Но в этом случае в суде обязательно обратят внимание на охранную зону трубы, это усложнит задачу.
Надежда МНадежда М 25 сент., 12:23
nm8932328 (Орехово-Зуево)
Ярослав подскажите, еще такой вопрос какова вероятность что газовщики сохронят пристройку и дадут разрешение?
Богушевский ЯрославНадежда М 25 сент., 16:51
Народный консультант
Сносить врядли будут, но и положительное судебное решение под большим вопросом.
Надежда МНадежда М 29 сент., 14:52
nm8932328 (Орехово-Зуево)
Добрый день Ярослав, дом поделен на троих собственников, один собственик возвел две пристройки на общедолевой земле с нарушениями без разрешений на пристройку и согласий остальных собственников, пристройки не узаконил. Далее он умирает, смогут ли наследники зарегистрировать эти пристройки без согласия остальных собствинников?
Богушевский ЯрославНадежда М 29 сент., 17:56
Народный консультант
Добрый день, любые движения, в вашем случае, требуют согласия со стороны всех содольщиков.
Надежда М 25 сент., 08:45
nm8932328 (Орехово-Зуево)
Здравствуйте. У нас участок в долевой собственности, на участке дом поделеный на трех собственников, соседи пристроили комнату к своей части дома, не спросив разрещения других собственников, пристрока с нарушениями. В доль участка проходит газовая труба высокого давления второй категории, пристрой находится на растоянии 5 метров от газопровода, хотя охранная зона должна быть семь метров. Вопрос: смогут ли соседи узаконить эту пристройку без согласия других собственников, и разрешат ли газовщики оставить пристрой?
Богушевский ЯрославНадежда М 25 сент., 10:59
Народный консультант
Ответил Вам в другом сообщении. Добавлю, газовщики очень серьезно настроены в вопросах размещения строений в их охранных зонах, если их привлекут в суд в качестве третьих лиц, они будут против такого размещения.
Надежда МБогушевский Ярослав 25 сент., 15:45
nm8932328 (Орехово-Зуево)
Ярослав, спасибо Вам большое за ответы, Вы нам очень помогли.
Гость 247494-4747 27 сент., 00:53
anonim-247494-4747 (Санкт-Петербург)
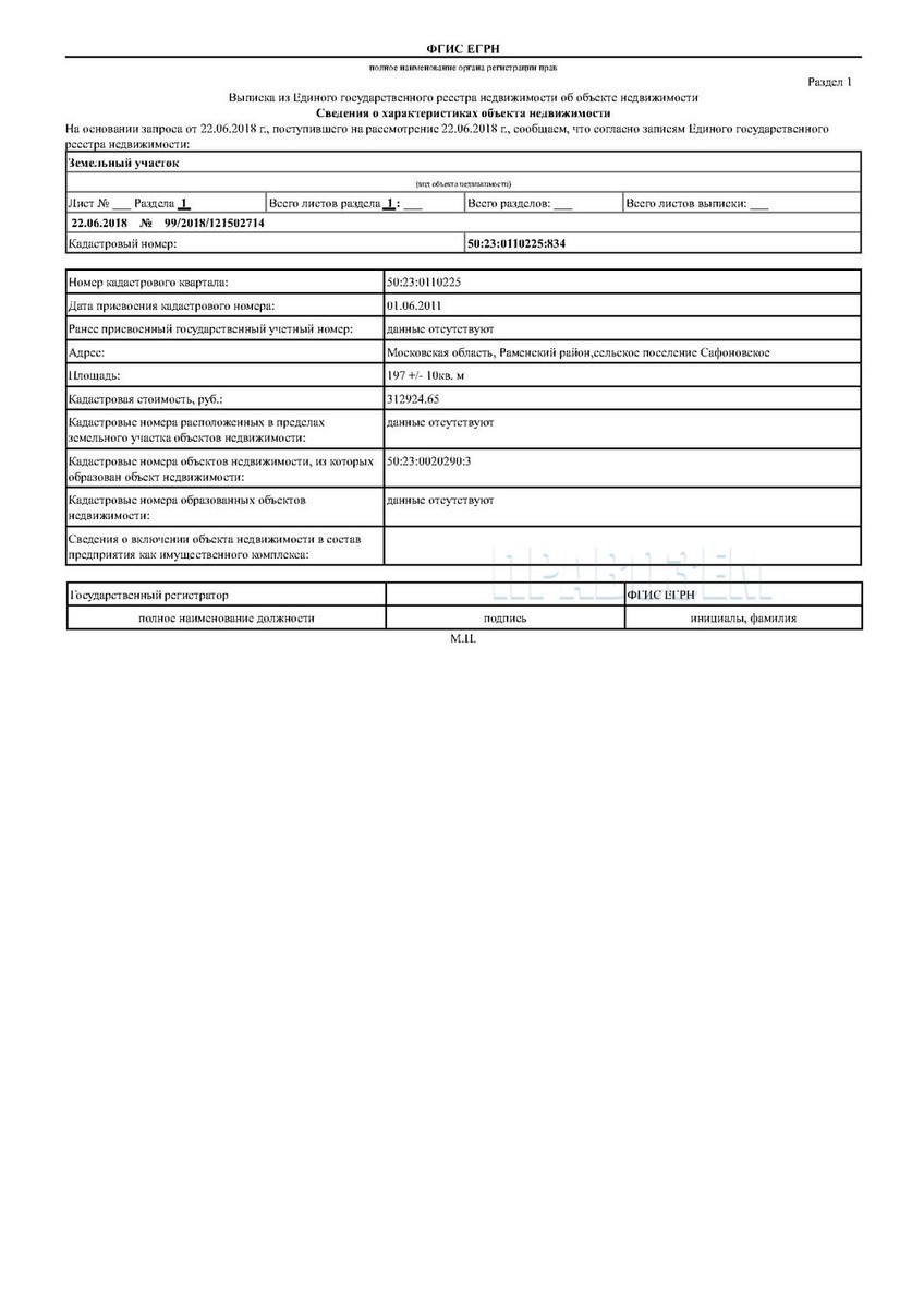
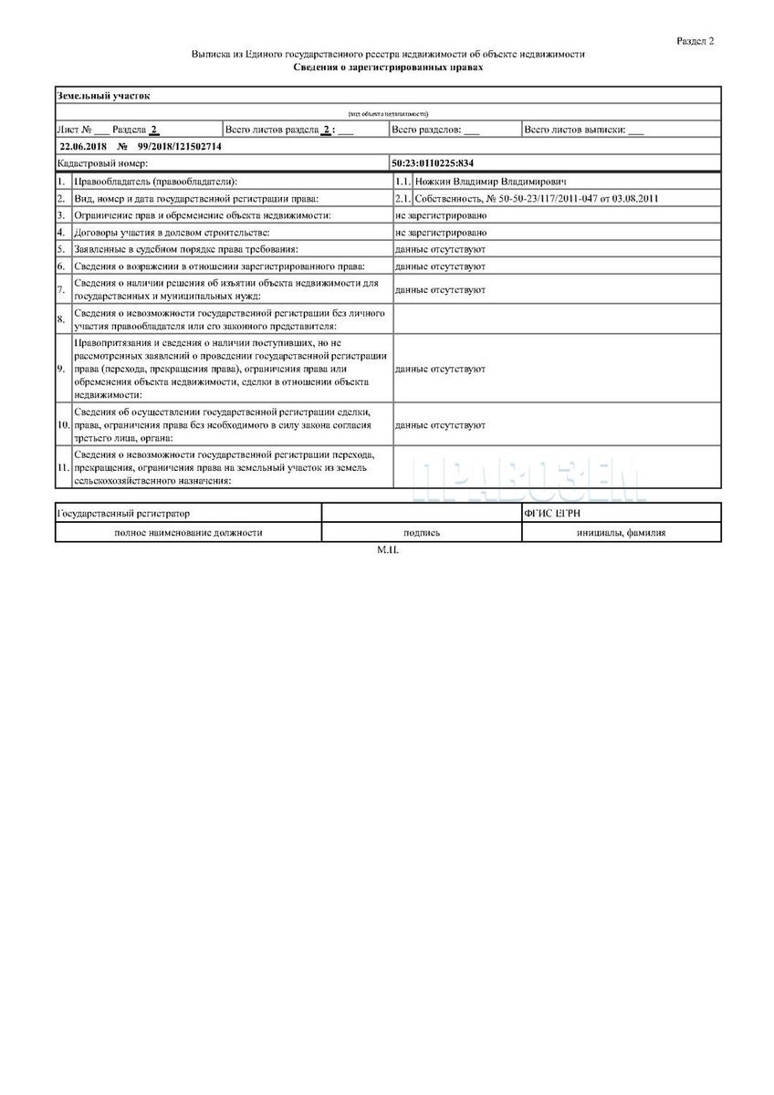
Здравствуйте. Проконсультируйте пожалуйста. Отказали в регистрации зу по причине охранной зоны трубопровода. В свидетельстве не указаны обременения. Как узнать есть или нет? И на какую часть участка? Понимаю ГПЗУ? И что можно построить на участке? Сель хоз назначения для садоводства. Спасибо.
Богушевский ЯрославГость 247494-4747 28 сент., 15:13
Народный консультант
Добрый день, уточните, есть ли у вас ГПЗУ на участок?
Гость 247848-5031 20 нояб., 22:28
anonim-247848-5031 (Москва)
Сегодня узнаю что завтра сосед начинает работы по прокладке газовой трубы вдоль моего бетонного забора и труба будет проходить через мои въездные ворота и калитку. Могут ли подрядчики выполнять работы (пропет у них есть) без согласования с соседями и председателем. Газовая служба имела возможность сделать проект другими путями, даже менее затратными. Могу ли я препятствовать этому строительству.
Богушевский ЯрославГость 247848-5031 23 нояб., 11:59
Народный консультант
Добрый день! Откуда Вы знаете, что проект мог быть сформирован в обход Вашего участка? Препятствовать Вы можете только если у Вас будет предписание о том, что такое строительство нарушает Ваши права , либо несет угрозу жизни и здоровью.
Сергей 7 дек., 10:54
Оформитель (Москва)
Возможно ли под землёй проложить коммуникации длиной примерно 80 метров к жилому дому на садовом участке в Московской области если для прокладки есть полоса земли шириной 3.5 метра, которая на большей части с обоих сторон ограничена забором с соседями (см. Схему ).
Имеются следующие ТУ на технологическое присоединение на границе участка:
1). Водопровод холодного водоснабжения,
По ТУ на технологическое присоединение от Водоканала Мытищи: Максимальная нагрузка водоснабжения в возможной точке подключения — 1 м3/сут, диаметр трубы в точке подключения 100 мм.
2). Канализационная труба,
По ТУ на технологическое присоединение от Водоканала Мытищи: Максимальная нагрузка водоснабжения в возможной точке подключения — 1 м3/сут, диаметр трубы в точке подключения 160 мм.
3). Газовая труба,
По ТУ на технологическое присоединение от Мособлгаза: Максимальная нагрузка (часовой расход газа) : 5 куб. Метров в час. Давление газа в точке подключения: максимальное: 0.003 МПа; фактическое (расчетное) : 0.0017 МПа. Информация о газопроводе в точке подключения: — диаметр трубы 63мм, материал трубы полиэтилен.
4). Электрический кабель,
По ТУ на технологическое присоединение от Мособлэнерго: Максимальная мощность присоединяемых энергопринимающих устройств заявителя составляет 15 кВт. Категория надежности ─ III-я. Класс напряжения электрических сетей, к которым осуществляется технологическое присоединение ─ 0.4 (кВ).
Богушевский ЯрославСергей 8 дек., 12:26
Народный консультант
Добрый день, вы поучали согласования от смежных ведомств на монтаж коммуникаций на данном участке?
Богушевский ЯрославСергей 16 дек., 10:33
Народный консультант
Добрый день! В договорах с ресурсоснабжающими организациями, есть пункт условия подключения, в нем вся информация по способу прокладки коммуникаций и подключения участка.
Гость 247205 8 февр., 07:05
anonim-247205 (Астрахань)
здравствуйте! У нас на стыке участков с соседом со стороны улицы в метре от общего забора выходит газовая труба и идет по забору между соседними (то есть нашими участками) могу ли я построить гараж как показано на рисунке? С учетом того, что отступая метр от соседнего гаража, соответственно г. труба тоже будет в метре от гаража.
[вложенный файл].Богушевский ЯрославГость 247205 8 февр., 12:01
Народный консультант
Добрый день! Охранная зона газовой трубы распространяется на Ваш участок?
Гость 247205Богушевский Ярослав 8 февр., 12:30
anonim-247205 (Астрахань)
Здравствуйте!, а как узнать по поводу охранной зоны? У нас новые застройки, четыре одинаковых дома по 80 м2 на участках по 4.2 сотки в доль переулка, лэп проходит за участками, а спереди, примерно 1.5 метра от забора водоснобжение именно только для этих домов, получается наш дом предпоследний, но колодец (тупиковый) водоснобжения находится по середине крайнего участка и нашего и так же с другой стороны проведена газовая труба, она идет под землей на другой стороне переулка и сделана врезка как раз по середине между участками и проложена через дорогу так же под землей и как показанно на рисунке выходит из земли на высоту примерно двух метров и проходит прям по забору между участками и сзади участков разветлено по этим четырем домам, межевание пока сделано только общей площади на 4 дома, деление и подготовка документов в процессе.
Богушевский ЯрославГость 247205 8 февр., 12:55
Народный консультант
Делите участки и заказывайте ГПЗУ на Ваш участок, в нем будет указаны все ограничения на участок. Если охранной зоны нет, то можете располагать строение в 1 метре от границы.
Гость 247205Богушевский Ярослав 8 февр., 13:55
anonim-247205 (Астрахань)
Спасибо большое!
А в принципе есть какие то отклонения от норм в связи недостаточностью места? Так как сами понимаете, на 4 сотках 80м2 дом занимает основную долю земли, плюс хочется и гараж постороить и баньку установить, а тут получается если по СНиПам итп, то нельзя ничего строить дополнительно.
вот так выглядят участки, соответственно наш дом второй где указаны планируемые баня и гараж
Богушевский ЯрославГость 247205 8 февр., 15:33
Народный консультант
В Вашем случае можете попробовать получить разрешение на отклонение от норм строительства, так как участок при формирование не больших размеров, возможно Вам удастся получить.
Гость 247676-5401 28 март, 21:04
anonim-247676-5401 (Москва)
Здравствуйте. Участок ИЖС попадает в санитарную зону магистрального газопровода (нас там участков 15). Владелец трубы подал в россреестр только охранную, санитарная оказалась для покупателей сюрпризом. Уже пошли отказы на строительство. Обжаловать отказ в суде? Частно или коллективно?
Богушевский ЯрославГость 247676-5401 29 март, 12:24
Народный консультант
Добрый день, пришлите на нашу почту pravo@pravozem.ru кадастровый номер участка для проработки ситуации по вашему району.
Гость 247676-5401Богушевский Ярослав 29 март, 13:26
anonim-247676-5401 (Москва)
Добрый день, отправила.
Богушевский ЯрославГость 247676-5401 29 март, 17:22
Народный консультант
Хорошо, наши юристы ответят вам в ближайшее время.
Гость 247880-5498 13 апр., 23:26
anonim-247880-5498 (Чехов)
Добрый день! Сосед поставил газовый ящик с 50л. Баллоном и подключил его с глухой стены своей бани. Ящик расположен в 1 метре от забора с нашим участком. Забор из рабицы. У нас напротив этого ящика расположен колодец и мы часто находимся в этой части своего участка. У нас теперь опасения что баллон может взорваться, а расстояние до забора всего 1метр. И если в этот момент кто то из нашей семьи будет находиться рядом может пострадать от взрыва. Подскажите, можем ли мы предъявить претензию соседу? И насколько правомерно он расположил газовый ящик с баллоном относительно нашего участка в такой близости?
Богушевский ЯрославГость 247880-5498 14 апр., 11:43
Народный консультант
Добрый день, в данном случае, оборудование, установленное вашим соседом несёт угрозу жизни и здоровью окружающих. Вы можете обратиться в суд по этому вопросу. Будет проведена судебная экспертиза. Если в ходе экспертизы подтвердится угроза жизни и здоровью окружающих, то суд обяжет вашего соседа устранить её.
Гость 247633-6017 27 авг., 17:45
anonim-247633-6017 (Ростов-на-Дону)
На смежном с моим участке построился дом в 50 см от межи и менее 50 см от газопровода низкого давления с охранной зоной по 2 м от оси трубы. Что бы нее сносить дом, сосед обратился в газпром с просьбой переложить гзоопровод на стену дома и снять охраанную зону. Ему согласовали и газпром сделал проект за счет газппрома. Разрешение на строительство -' отступить 3м. Нарушены градостроительный регламент и нормы пожарной безопасносности. Вердикт судьи Акименко Н. Дело2-1251/2020: не чинитьпрепядствий реконструкции газопровода. Получается стройся в охранной зоне газопровода низкого давления. Чем ближе к трубе тем лучше. Тебе в подарок прект и трубу на стену для обеспечения безопасности. Фз 69 запрещает сироиться в охранных зонах ближе 2 м от трубы. Но фз 69 разрешает крепить трубу на кронштейны к стене. А какая безопасность?
Богушевский ЯрославГость 247633-6017 30 авг., 12:08
Народный консультант
Добрый день, в чем вопрос? Чего Вы хотите по итогу добиться от соседа?
Гость 247555-6347Богушевский Ярослав 15 дек., 15:33
anonim-247555-6347 (Ростов-на-Дону)
По такой схеме можно строиться? Построил без согласования в охранной зоне газопровода низкого давления, спокойно написал заявление " прошу переукладку газоппровода по стене своего дома". И все! Теперь такую схему хорошо будет применять что б обойти запрет на строительство в охранных зонах газопроводов низкого давления. Меня ведь обязали забор демонтировать по ПП РФ 878 ОТ 20.11. 2000. Я ПРОСИЛА забор согласовать и сарай в охранной зоне.
Богушевский ЯрославГость 247555-6347 16 дек., 12:42
Народный консультант
Добрый день, да действительно согласование требуется для получения разрешения на строительство, это прекрасно что у Вас получилось оформить дом в запретной зоне, так как множество факторов могли бы быть помехой..
Евтихова Ирина 5 окт., 10:05
ls.bf197 (Москва)
Здравствуйте, сосед построил гараж близко к нашей газовой трубе да и по отношению к забору и дому тоже очень близко. Мотивирует это тем, что у него есть разрешение, но разрешение он имеет на хозпостройку — не гараж и получил он его за взятку (сам проболтался). Хочется понять насколько это законно и стоимость ли бороться за снос гаража. Дом родителей находиться в Брянске. Примерную схему прилагаю.
Богушевский ЯрославЕвтихова Ирина 8 окт., 04:19
Народный консультант
Добрый день, подобные коммуникации довольно опасны, поэтому перед строительством требуют согласования, в некоторых случаях согласование не возможно и собственники ЗУ получают отказы, все зависит от степени давления газопровода. При строительстве необходимо учитывать отступы по СНиП , трубы с невысоким давлением представляют собой меньше опасности во время ежедневной эксплуатации и при аварийных ситуациях. Однако газопроводы низкого давления которые под землей, могут также оказаться опасными, поскольку определить утечку гораздо сложнее. Для соседей, конечно бы было куда лучше, построить гараж по дальше от газопровода, соблюдая нормы. Но все же, если строение поставлено на кадастровый учёт, решить вопрос о сносе возможно будет только в судебном порядке.
Гость 247404-6991 20 авг., 09:26
anonim-247404-6991 (Тамбов)
По такой схеме можно строиться? Построил без согласования в охранной зоне газопровода низкого давления, спокойно написал заявление " прошу переукладку газоппровода по стене своего дома". И все! Теперь такую схему хорошо будет применять что б обойти запрет на строительство в охранных зонах газопроводов низкого давления. Меня ведь обязали забор демонтировать по ПП РФ 878 ОТ 20.11. 2000. Я ПРОСИЛА забор согласовать и сарай в охранной зоне. Добрый день! Не совсем понятен ход действий по обходу запрета на строительство, поясните пожалуйста?
Богушевский ЯрославГость 247404-6991 20 авг., 23:14
Народный консультант
Добрый день, согласования при низком давлении проходят успешно, рекомендую все же перед началом строительства подавать уведомления, так как на участке могут быть другого рода ЗОУИТ.
Гость 247404-6991Гость 247404-6991 21 авг., 09:22
anonim-247404-6991 (Тамбов)
Ярослав, спасибо за ответ! В моем случае строительство уже начато, залит монолитный ж/б фундамент для хоз. Постройки, над которым проходит газопровод низкого давления. Новая хоз. Постройка размещена на месте пристройки к дому, которая снесена. Газовая труба проходила в 5 см. Над крышей снесенной пристройки. В охранной зоне газопровода (2м) сейчас находится и сам жилой дом. Сейчас меня ждет судебное разбирательство по указанному домовладению и я планирую узаконить постройку как самовольную. Как лучше решить вопрос по газу? Заранее запастись сторонним техническим заключением или обращаться к газовикам? Как понимаю согласование газовиков уже не получить, поскольку конфигурация строений изменена без предупреждения.
Богушевский ЯрославГость 247404-6991 23 авг., 09:17
Народный консультант
Если у Вас подведён газ к дому, который стоит на участке, то для оформления нежилого строения не требуется согласование, а так же разрешение на строительство. Оформите строение в обычном порядке как нежилое, проблем с этим возникнуть не должно.
Гость 247404-6991Богушевский Ярослав 27 авг., 13:46
anonim-247404-6991 (Тамбов)
Спасибо за ответ Ярослав! О том что не требуется разрешение на строительство строений вспомогательного использования на землях ИЖС в соответствии с ГрК РФ, мне известно. Интересует, есть ли какие ли бо специальные газовые нормы которые так же указывают как и ГрК РФ, о том что для хоз. Постройки согласований и разрешений на строительство брать не нужно?
Богушевский ЯрославГость 247404-6991 28 авг., 16:57
Народный консультант
Добрый день. Для газификации нежилого строения, так же необходимо учитывать ряд условий, это отступы не менее 6 метров от построек соседей, 3 метра от основного строения на участке, строение должно быть зарегистрировано в Росреестре, для этого строение должно быть капитальным, иметь вентиляционную систему и документ Техплан. Для подключения уже проведённого ранее газа к объекту капитального строения и проведения его в нежилое здание, достаточно внести изменения в раннее подписанный договор.
Гость 247404-6991Гость 247404-6991 29 авг., 07:54
anonim-247404-6991 (Тамбов)
Спасибо за ответ Ярослав! Специфика нахождения моей хозяйственной постройки в охранной зоне газопровода низкого давления (сети газораспределения) несколько иная. Практически по фасаду жилого дома проходит транзитная труба (где то 40 мм диаметр) на 3 метровых столбах, от которой питаются жилые дома в моем районе. Моя капитальная хозяйственная постройка, представляющая пока фундамент, непосредственно примыкает к дому. Таким образом, газовая труба проходит над моей хозяйственной постройкой. Как понимаю если постройка ниже трубы, то все остается как есть, если постройка выше трубы, то на нее надеваем футляр и пропускаем транзитом. Об всех этих действиях, никому не куда не сообщаем, так как указанные действия согласования не требуют, поскольку саму газовую трубу мы не трогаем. Газификация хозяйственной постройки пока не требуется.
Богушевский ЯрославГость 247404-6991 29 авг., 13:43
Народный консультант
Совершенно верно, но все же рекомендую обратиться в газовую службу, вдруг были какие либо изменения.
Галина 2 окт., 19:13
galina0912nik (Великий Новгород)
Здравствуйте. Очень нужна ваша консультация, сделала межжевание участка, и оказалось что есть обременение по газопроводу, подземное 100 метров участок вошёл в охранную зону, я сходила в архитектуру насчёт разрешение на строительство, мне сказали если газовщики разрешат, то и они дадут разрешение на строительство, вот и вопрос как сделать так чтобы они разрешили что-то построить.
Богушевский ЯрославГалина 3 окт., 13:57
Народный консультант
Добрый день, положительный результат может быть в случае если давление газораспределительной трубы не высокий. Обратитесь в газовую службу доя согласования, после можно подавать уведомление о начале строительства прикрепив заключение с газовой Службы.
Гость 247415-7369 3 март, 12:05
anonim-247415-7369 (Москва)
Добрый день! Проверял сегодня наш участок 50:38:0060205:97, исходя из той информации, которую получил, имеется пересечение с охранной зоной газораспределительной сети. Хотел бы уточнить, можно ли на нашем участке, где имеется пересечение, проводить строительство дома, если можно — есть ли какие-то ограничения на строительство?
Гость 247415-7369Гость 247415-7369 3 март, 14:42
anonim-247415-7369 (Москва)
В выписке ЕГРН указано следующее: Сведения об ограничениях права на объект недвижимости, обременениях данного объекта, не зарегистрированных в реестре прав, ограничений прав и обременений недвижимого имущества: Вид ограничения (обременения) : Ограничения прав на земельный участок, предусмотренные статьей 56 Земельного кодекса Российской Федерации; срок действия: c 20.02. 2023; Реквизиты документа-основания: Об утверждении границ охранных зон газораспределительных сетей, расположенных в Московской области от 2022-12-14 № 1394-РМ выдан: Министерство экологии и природопользования Московской области.
Богушевский ЯрославГость 247415-7369 3 март, 17:54
Народный консультант
Добрый день, по Вашему участку Охранная зона, газораспределительной сети "Газификация д. Овечкино сельского поселения Машоновское" городского округа Зарайск Московской области, Охранная зона инженерных коммуникаций Площадь пересечения:49 м2 Процент пересечения1.5% необходимо пройти согласование. На участке имеются постройки?
Гость 247561-7376Богушевский Ярослав 5 март, 15:28
anonim-247561-7376
Построек нет. С кем нужно согласование в случае строительства?
Богушевский ЯрославГость 247561-7376 5 март, 22:38
Народный консультант
Согласование с газовой службой, после подайте по новой уведомление, прикрепив полученный документ о возможности строительства.
Гость 247956 5 июля, 01:13
anonim-247956 (Волгоград)
здравствуйте, есть дом на участке (вся улица так), рядом идёт распред. Газ труба низкое давление, в ЕГРН видно что часть дома в охранной территории, труба фактически под крышей дома недалеко от стены ~20-30см. Обременения на дом нет. Раньше был дом, потом получено разрешение на реконструкцию и она проведена, есть техплан. Дом не введён в эксплуатацию. Возникли вопросы: - проведёт ли Росреестр сделку (возможно ли что откажет из-за охранной территории газа или нарушений в этой недвижимости) - возможно ли договориться о разрешении с газовиками - кто-нибудь сталкивался сколько стоит отодвинуть распределительную трубу от дома.
Богушевский ЯрославГость 247956 5 июля, 13:32
Народный консультант
Добрый день, при наличии охранной зоны необходимо провести согласование с газовой службой , подкрепить заключение в основной пакет документов при регистрации изменений в части реконструкции.
Гость 247431-5201 25 апр., 15:55
anonim-247431-5201 (Родники)
Добрый день. Подскажите, есть ли вообще какая-то возможность получить разрешение на строительство дачного домика в зоне расположения магистрального газопровода. Участок удален от оси газопровода на 150-180 вместо необходимых 250. Спасибо.
Богушевский ЯрославГость 247431-5201 26 апр., 09:41
Народный консультант
Добрый день. Да, возможно, при наличии согласования строительства с газовым хозяйством.
Гость 247347-5798 28 мая, 16:11
anonim-247347-5798 (Смоленск)
Добрый день! Хочу купить участок через ипотеку под строительство собственными силами! По участку проходит газовая труба! Газпром говорит что нужно отступать 7 метров от трубы и строить Банк требует разрешение на строительство! Где взять это разрешение?
Богушевский ЯрославГость 247347-5798 28 мая, 18:24
Народный консультант
Добрый день, в охранной зоне которая накладывается на участок, сложно будет пройти уведомительный порядок, но можно только с согласованием газовой службой
Олеся Россомахина 28 мая, 20:05
golovinaos1 (Пермь)
Доброго вечера! У нас такая ситуация: Приобретаем участок в ипотеку с дальнейшим строительством (на участке залит фундамент по фундаменту предидущего дома, дом снят с регистрации). Просят согласие на строительство от газовой, но мы просто уже не знаем куда обратиться, Газпром утверждает, что 3! Трубы принадлежат третьим лицам Подскажите, куда нам обращаться?
Богушевский ЯрославОлеся Россомахина 29 мая, 10:40
Народный консультант
Добрый день, если охранная зона газораспределительная сеть, значит Вам необходимо сделать проект дома и официально через почту отправить на согласование.
