Здравствуйте! Что можно сделать в данной ситуации/ В 1987 году приобретен участок в СНТ С ОБОЗНАЧЕНИЕМ его размеров 6 соток. В 2009 году КОЛЛЕКТИВНО силами председателя СНТ было проведено межевание участков. Владельцы участков при данном процессе не присутствовали. По результатам межевания было выдано свидетельство и указан размер участка 5.29Никаких колышков, либо других опознавательных знаков на участке не было. В этом году для регистрации строения решили вынести точки в натуру и оказалось, что участок по факту больше, чем 5.29. За прошедшие 10 лет с момента межевания ни с одной стороны участка ограждения не передвигались. С одной стороны вообще идет труба водопровода, которая уже 40 лет проходила по границе и не менялась. Получается что "ошибка" произошла в момент межевания 2009 года организацией её проводившей. Можно ли как-то решить эту проблему, не привлекая соседей? По кадастровой карте у всех смежных соседей 6 соток.
Межевание не совпадает с границами исправить кадастровую ошибку
Богушевский Ярослав 26 авг., 19:44
Народный консультант
Добрый день! По факту сейчас размер участка у Вас 6 соток?
Нет, по факуту он и не и 6 и не 5.29. Просто при выносе точек в натуру в соответствие с координатами межевого плана часть этих точек оказались на наших строениях котоорым по 20 лет. Границы фактического землепользования не совпадают с указанными в межевом плане. При этом никто ничего не передвигал. Ошибка обнаружилась при попытке зарегистрировать хозблок. Заодно решили вынести точки в натуру и оказалось что хозблок на чужой территории. Хотя у срседей по кадастровым документам по 6 соток, у нас написано 5.29. Не знаю в каком порядке действовать. Это явная кадастровая ошибка. Что нужно сделать сначала для того, чтобы доказать мирно или в суде эту кадастровую ошибку и её исправить?
Богушевский ЯрославГость 247347-3988 29 авг., 18:51
Народный консультант
Добрый день! Вам необходимо сделать межевой план на исправление кадастровой ошибки, после чего обращаться в росреестр на исправление.Но если кто то из соседних участков против такого исправление Вам нужно будет обращаться в суд
Надежда Столярова 26 июня, 18:40
36937822010 (Калуга)
Спор с соседями из-за территории и площади участка
Добрый день. Наша семья владеет данным участком уже 59 лет. Еще дедушка получал его. От соседей отгораживали нас только столбики с закрепленной на них металлической трубой. Более 45 лет у нас не было конфликтов с соседями, однако лет 13 назад участок соседей был практически заброшен, а два года назад соседский участок приобрела женщина. Изначально у нас не было споров по территории, однако периодически она стала засаживать нашу территорию (якобы случайно). Встал вопрос о установке забора. И тут выяснилось, что по ее плану, который никто из руководства садоводческого товарищества никогда не видел, мы захватили 30 см по переднему забору и 70 см по задней части участка. Сосед сзади (у нас общий столб на пересечении 4-х участков), также как и мы, возмутился этим фактом, так как получалось, что столбы которые стояли 60 лет стояли неправильно. Председатель товарищества на быструю замерил ее участок и заявил, что мы заняли ее территорию. Осложняется дело тем, что границы нашего участка не устанавливались, а соседний как-то был установлен. Подскажите, что нам делать теперь? Потому как соседка стоит на своем, а наши замеры участка показывают, что это как раз она заняла часть нашей земли. Размер нашего участка 10,6 соток.
Богушевский ЯрославНадежда Столярова 26 июня, 20:15
Народный консультант
На самом деле, у Вас споры по площади, размеры которой входят в норму погрешности. 30-40 см допустимая погрешность для земель с/х назначения. Так как у Вас изначально не был установлен забор, то сейчас уже сложно будет определить изначальные границы участка. Поэтому Вам необходимо, в любом случае, провести межевание Вашего земельного участка по фактическим границам и, если будет накладка на соседний участок, обращаться в суд.
Надежда СтоляроваБогушевский Ярослав 26 июня, 21:03
36937822010 (Калуга)
Наш участок огорожен по внешней границе и по задней, он угловой. Справа у нас овра г. Ограждения нет только между нами и соседями слева (участок 3). На первом рисунке наш участок обрисован голубым, и если идти по границе, как нарисован соседний участок в кадастре, то наш должен уменьшиться почти на 1 сотку.
Богушевский ЯрославНадежда Столярова 27 июня, 14:55
Народный консультант
Основной момент — это площадь участка, указанная в ЕГРН. Если она совпадает с той площадью, которая указывается в правоустанавливающем документе, скорее всего, так и есть, то все в порядке.
Гость 277320 8 июня, 23:45
anonim-277320
Здравствуйте, Ярослав! Помогите пожалуйста, что делать в нашей ситуации. Мой участок межеван в 2003г 608м (по свидетельству должно быть 620). На данный момент соседи затеяли межевание и выяснилось что имеется кадастровый "съезд" границ на них по подсчету из инженера на 54см, а по подсчетам моего на 21см (есть еще наезд соседа с другой стороны на меня на 30см). Мы были согласны на исправление ошибки в рамках их межевого дела. Соседи прислали мне на электронную почту письмо с двумя файлами которые я должна по их словам подписать, это акт и новые границы моего участка (они отличаются от тех что в реестре и от координат фактических границ моего ЗУ). Я вызвала инженера что бы он поставил маяки этих новых границ что бы воочию видеть их, на выносе маяков присутствовала и та соседка которая мне и прислала их. После выноса оказалось, что наша сменная граница уходит в глубь моего участка от забора на 33см, а двумя другими сторонами новые границы уходят на 3 соседних участка. Инженер спросил соседку согласна ли она на такие мои границы и она сказала "конечно, я потом и забор перенесу", а я отказалась так как меняются фактические границы моего участка и возникает наезд на фактические границы трех соседних ЗУ, что исправление должно быть по фактическим границам. Соседка вспылила и ушла угрожая судом. Зимой по моей инициативе председатель помог нам с ней встретиться и поговорить на счет исправления ошибки и на мои слова что давайте позвони вашего инженера для правильного замера фактических границ моего ЗУ, она сказала что никого звать она не будет, что она все правильно рассчитала и если я не подпишу ей эти документы и новые границы она подаст в суд, после чего встала и ушла и больше на контакт не выходит (только угрожает моей матери инвалида, что мы за все поплатимся и за все заплатим в суде. Недавно мне удалось поговорить с их межевым инженером и она сказала что никаких подсчетов координат моего участка не делала и знать не знает что мне там прислали и что соседи должны были просто подойти с актом на подпись и что я сама во всем виновата и бросила трубку. Сейчас выяснилось что суд назначен на 13 число. Я не знаю что делать (Подскажите как действовать правильно что бы не остаться виноватой в суде, что бы исправить ошибку по правилам (по фактическим границам) и не остаться с оплатой всех счетов.
Богушевский ЯрославГость 277320 9 июня, 11:45
Народный консультант
Добрый день. Какие документы у вас имеются после выноса ваших точек в натуру? Делалась ли новая схема со всеми наложениями? Когда соседка подавала в суд она должна была подготовить досудебное заключение и также направить его Вам? Какие документы Вам пришли из суда?
Гость 277320Богушевский Ярослав 9 июня, 13:35
anonim-277320
Есть только письмо с их предложением, фото маяков и все. Приходило письмо летом (до встречи которую устроил председатель) о том что у меня есть месяц исправить ошибку иначе они идут в суд и все. Из суда пока пришло только смс о том что назначено слушание, где я ответчик.
Богушевский ЯрославГость 277320 9 июня, 15:15
Народный консультант
Добрый день. Пришлите выписку из ЕГРН на Ваш земельный участок необходимо посмотреть средеквадратическую погрешность.
Богушевский ЯрославГость 277320 9 июня, 16:32
Народный консультант
Добрый день. Почти необходима выписка из ЕГРН об основных характеристиках объекта недвижимости. Возможно Вы не давно ее получали или пришлите кадастровый номер земельного участка.
Гость 277320Богушевский Ярослав 9 июня, 17:00
anonim-277320
50:16:0601049:100.
Сейчас пришло на почту письмо из суда. Исковое заявление о признании координат границ земельных участков не установленными.
Богушевский ЯрославГость 277320 9 июня, 17:59
Народный консультант
Добрый день. Пришлите документ в котором прописан именно этот номер. Мы не можем найти Ваш участок в базе.
Гость 277320Богушевский Ярослав 9 июня, 18:11
anonim-277320
И подскажите еще пожалуйста, мне в суде нужен адвокат или я могу справится сама? Да и вообще что же делать и что меня может ждать.
Богушевский ЯрославГость 277320 13 июня, 11:38
Народный консультант
Добрый день. Данные по участку мы нашли. Участок стоит в границах соседи справа межевание не проведено. В суде если у вас не было опыта участия в подобных делах лучше прибегнуть к помощи специалистов.
Гость 277320Богушевский Ярослав 13 июня, 12:11
anonim-277320
Наложение есть я не отрицаю. Только подсчеты разные. У моего геодезиста 21, у соседского 54см. Они давали координаты на подпись со своим исчеслением и получилось по ним что мой участок уходит из фактических границ на соседей в другую сторону и происходит наложение моих границ на три участка. А смежная граница с истцом ушла от забора на 32-33см. Я такие границы не подписала. Итог я в суде с иском о признании моих границ недействительными и снятии меня с реестра
Богушевский ЯрославГость 277320 13 июня, 15:54
Народный консультант
Добрый день. В такой ситуации в суд лучше прийти еще с кем то, чтобы с уметь до суда донести Вашу позицию. И почему вы не согласились с позицией другой стороны. У Вас сохранились документы, которые они Вам предлагали подписать? В ходе судебного разбирательства будет назначена экспертиза, и уже ее результаты покажут наличие ошибки или ее отсутствие.
Гость 245693 1 нояб., 18:04
anonim-245693
Добрый день! Из за наложения и пересечения границ участков друг на друга несколько собственников сообща решили изменить координаты ЗУ, чтобы исправить ошибки. Все участки оформлены в собственность и на всех (кроме одного) проведено межевание. Допускается ли по закону и существует ли практика подачи одного межевого дела на все ЗУ по исправлению границ? Или после установления кадастровым инженером новых координат, каждый собственник должен заводить отдельное межевое дело и самостоятельно подавать документы на исправление границ в Росеестр? И правильно ли я понимаю, что при изменении координат ЗУ, меняется кадастровый номер?
Богушевский ЯрославГость 245693 2 нояб., 19:08
Народный консультант
Добрый день. Что касается одного межевого плана, то все верно, в случае исправления кадастровой ошибки ( накладки) по нескольким участкам формируется один межевой план, он подается в Росреестр и сразу одним разом все исправляется. У участков будут другие координаты, но кадастровые номера не поменяются. Отдельных межевых планов на каждый участок заводить не нужно.
Гость 279821Богушевский Ярослав 13 нояб., 21:16
anonim-279821
Добрый вечер! У нас есть во владении дачный участок 4 сотки хотя по факту 3.7 межевание проводилось 2008 году по существующим ограждениям. Пять лет назад соседи продали свой участок. Новые хозяева предъявили нам претензию то что у них не хватает 0.6 соток и хотят забрать у нас 80 см. Мы решили вызвать геодезию и дать точки по кадастровому номеру, оказалось что наш участок накладывается на три 2.5-3 метра на 3 соседних участка т.е. вся улица, а это 30 участков находятся не на своих границах. Что делать в этом случае?
Богушевский ЯрославГость 279821 14 нояб., 12:01
Народный консультант
Добрый день. Пришлите, для наглядности, схему с фактической ситуацией, с кадастровыми границами и накладкой на соседние земельные участки.
Гость 279821Богушевский Ярослав 14 нояб., 19:39
anonim-279821
16÷39÷100701÷2629
16÷39÷100701÷2629
Может произошла ошибка так как мы меняли кадастровый паспорт 2015 году. Старый кадастровый паспорт16÷39÷1000701÷2515
Богушевский ЯрославГость 279821 15 нояб., 19:37
Народный консультант
Добрый день. Накладку видим только на 2 участках изобразите накладки более информативно. Не очень понятно Какие границы фактические и в чем именно накладка.
Гость 279821Богушевский Ярослав 15 нояб., 22:15
anonim-279821
Добрый вечер. После того как геодезия дали точки в натуру я примерно нарисовал схему карандашом на первом фото на 475 номер вышло за пределы забора 3 метра, на473 2.5 метра и угол775 соответственно.
Богушевский ЯрославГость 279821 16 нояб., 14:08
Народный консультант
Добрый день. Необходимо, чтобы эту накладку изображал кадастровый инженер и отображал все площади участка на чертеже. В том числе площади накладок и фактическую ситуацию по участку. Также он будет сразу видеть какие участки соседей стоят в границах в соответствии с требованиями законодательства.
Богушевский ЯрославГость 235405 19 нояб., 19:45
Народный консультант
Добрый день. На схеме изображено два участка один фактический и второй с накладкой? Или это просто смещение одного участка. Вы изначально говорили о трех участках. Не понятно где фактические границы, а где кадастровые.
Гость 247302Богушевский Ярослав 1 дек., 17:07
anonim-247302
Добрый вечер. На чертеже по углам которых стоят координаты это существующие ограждения, а со смещением это по кадастре геодезист выписали разницу в метрах.
Кстати соседи тоже вызвали геодезию у них тоже такое же смещение.
И еще вопрос могут ли соседи сдвинуть заборы если межевание делалось по ограждения и они купили уже в таких размерах участок.
Богушевский ЯрославГость 247302 3 дек., 18:32
Народный консультант
Добрый день. При такой ситуации необходимо приводить документы в соответствие, но нужно изначально понимать ситуацию с участками соседей. Их Вам на плане также должен был показать кадастровый инженер. Двигать заборы и переносит границы можно либо по договоренности либо на основании решения суда. По другому проводить такие действия не допустимо.
Гость 245693 18 нояб., 15:22
anonim-245693
Добрый день! Геодезисты перемерили участки по фактическим границам с целью уточнения и исправления координат без изменения площади с целью устранения наложений и пересечений границ участков друг на друга. Сказали, что будет предоставлен отчет, после чего все собственники, участвовавшие в этой процедуре, должны будут подписать акт согласования границ. В качестве примера отчета показали какой то план, где в ряд были расположены участки — прямоугольники (без пересечения и накладок) и больше никакой ин формации. Председатель уверяет, что ничего не изменится — просто уточняем координаты! В связи с этим у меня возник вопрос: как я смогу определить, что после уточнения координат у меня не изменилась площадь участка и конфигурация? Какие документы мне должны предоставить, чтобы у меня не оставалось сомнений в правильности перемера? Заранее благодарю за консультацию!
Богушевский ЯрославГость 245693 19 нояб., 13:21
Народный консультант
Добрый день. В этом случае пусть они предоставят Вам новые координаты Вашего земельного участка, а геодезист должен будет на участке указать где они проходят. И Вы будете понимать какая конфигурация у Вас станет, будут ли эти координаты выставлены по забору.
Гость 245693Богушевский Ярослав 19 нояб., 15:21
anonim-245693
Добрый день! То есть геодезист должен вынести точки в натуре ЗУ? Или я неправильно поняла Вас? А как узнать не изменилась ли площадь. Есть основания подозревать, что ее сделают меньше. И может ли быть такое, что покажут координаты по забору и скажут, что площадь не изменилась, а по факту окажется, что это не так? В каких документах должна отражаться эта информация? Я боюсь, что подпишу акт согласования, а потом придется судиться.
Богушевский ЯрославГость 245693 20 нояб., 18:37
Народный консультант
Вы знаете какая площадь у Вас в заборе? Если геодезист вынесет эти координаты в натуру, то Вы сможете понять где они находятся ( должны быть по забору). Эта информация должна отражаться в акте согласования и в самом межевом плане.
Гость 279812 15 июня, 22:47
anonim-279812
В документах о межевании нашего земельного участка почему-то незначительно разнятся длины границ. А именно: в проекте границ и в разбивочном чертеже стоит, например длина границ от точки 5 до точки 6 — 28.84 м А в "Приложении к Акту согласования границ земельного участка" в Схеме границ земельного участка длина границ между этими же точками стоит — 30.0 м И так практически со всеми точками земельного участка. Вопрос: какая точная длина границ участка 28.84 м или 30.0 м? Чему верить?
Богушевский ЯрославГость 279812 17 июня, 16:38
Народный консультант
Добрый день! Если правильно Вас понял, в новом межевом плане фактическая площадь пользования участка отличается от той которая была у Вас в документах. Если нет ни каких накладок с соседями то можете подписывать акт, просто Вы запользовали чуть больше земли.
Гость 279812Богушевский Ярослав 18 июня, 09:28
anonim-279812
Добрый день! Нет, это не новый межевой план! Межевой план один, был оформлен и согласован несколько лет назад и именно в нем разнятся длины границ: Сначала идет прект границ, затем разбивочный чертеж — в них длина границ одна (пример от точки 5 до точки 6 — 28.84 м), а в конце идет Акт согласования и к нему приложение в виде схемы, но у же с другими данными (от точки 5 до точки 6 — 30 м ). Все уже давно было подписано, но сейчас встал вопрос ограждения территории! Обращались в кадастровую, они говорят - мы не можем помнить, что было несколько лет назад. Если нужно вызывайте снова. Но это не в наших интересах, все стоит не малых денег, ведь мы это у же один раз оплатили. Сколько нашей территории 28.84 м или же все-таки 30 м?
Богушевский ЯрославГость 279812 18 июня, 11:54
Народный консультант
Добрый день! Пришлите документы, необходимо ознакомиться с ними прежде чем ответить на Ваш вопрос.
Богушевский ЯрославГость 279812 19 июня, 18:57
Народный консультант
Добрый день! Так как в одном документе разные данные, сложно сказать на что Вам ориентироваться, Лучшем решением будет сделать вынос точек на местности,чтобы точно знать где границы Вашего участка.
Гость 247514-558 30 янв., 14:23
anonim-247514-558 (Арзамас)
Добрый день! Уважаемые форумчане, у меня такая ситуация по перераспределению земель. Проблема следующая: имеется земельный участок в собственности коммерческого назначения с объектом недвижимости, соседей нет, по результатам промеров после строительства часть объекта недвижимости вылезла на городскую землю. Скорей всего ошибка кадастрового инженера, но это не точно. Требуется решение данной проблемы, а именно отрезать кусок свободной от недвижимости земли (участок это позволяет) от земельного участка в собственности который и прирезать такой же туда где вылезла недвижимость на землю администрации, без изменения общего размера земельного участка. Пока попытались внести изменения через проект межевания, получили отказ от юристов администрации. Вот такие бывают нюансы. Спасибо за внимание!
Света Артуровна 22 апр., 10:12
mehanikgt (Златоуст)
Добрый день! Сменился собственник участков №631.632, новый собственник пригрозил нам, что сдвинет наш забор в сторону наших участков, то есть треугольники будут входить в его участок. (по документам его площадь соответствует площади в кадастровой выписке, то есть он приобрел в собственность именно участки с границами, которые стоят на кадастре, то есть без этих треугольников. Вопрос сможет ли собственник участков № 631.632 сдвинуть границы (за треугольники выделенные зеленым цветом на рис.) в сторону ранее учтенных участков №76.66 (забор стоит более 15 лет), и более того при образовании новых участков №631.632 собственники установили свое ограждение то есть у нас идет два ограждения параллельно друг другу (у них свой забор, у нас свой забор, но параллельно)
Богушевский ЯрославСвета Артуровна 22 апр., 12:47
Народный консультант
Добрый день! На основании чего сосед хочет сдвинуть забор? Почему Вас отмежевали с такими границами?
Света АртуровнаСвета Артуровна 22 апр., 13:49
mehanikgt (Златоуст)
1) Предыдущие собственники, которые продали нов. Собственнику данные зем. Участки (участки образованы в 2015 году). Установили забор вдоль нашего и межевание произвели по забору. Утверждает, что у нас по факту больше площадь, чем в НАШИХ документах. 2) Мы уточнение границ не производили (юр. Не можем сделать, то есть есть запрет на ре г. действия от фспп) наш участок возник в 1994 году.
Богушевский ЯрославСвета Артуровна 22 апр., 15:02
Народный консультант
Откуда он знает, что у Вас участки больше чем по документам, он делал замеры Вашего участка?
Света АртуровнаСвета Артуровна 22 апр., 15:36
mehanikgt (Златоуст)
Информацию ему передали бывший собственник, у которых он приобрел свои участки. А откуда у них информация я не знаю, но это можно измерить линейкой на кадастровой карте.
Богушевский ЯрославСвета Артуровна 22 апр., 18:08
Народный консультант
Линейкой замеры на участке не делают, для этого нужен выезд геодезиста со специальным оборудованием. Если Вы действительно пользуетесь его участком , то он может обратиться в суд для исправления кадастровой ошибки и Вам придется передвигать забор.
Мария 9 июня, 10:09
my_world_is_fine
Со слов соседа, так как хозяйка, которой принадлежал участок, умерла, то они подали объявления в местную газету, что на таком-то участке будет проходит межевание и они ищут соседей с которыми граничат. Никаких писем на мой адрес не приходило. Газеты я не выписываю. Говоря проще, они сослались на то, что не нашли хозяина участка и провели межевания без меня.
Богушевский ЯрославМария 9 июня, 14:30
Народный консультант
Добрый день!Площадь Вашего участка уменьшилась? .
МарияБогушевский Ярослав 9 июня, 19:56
my_world_is_fine
Да, но замеры мы еще не проводили, пока оформляем документы. Когда вступлю в наследство, смогу вызывать кадастрового инженера и точно определить какая стала площадь.
Богушевский ЯрославМария 10 июня, 14:58
Народный консультант
Добрый день! Да, Вам необходимо сделать замеры, чтобы появился предмет спора. После этого Вам придется обращаться в суд, но тот факт, что участок был без собственности и если сосед грамотно проработает свою позицию в суде, может повлиять на решения суда не в Вашу пользу.
Гость 247819Мария 2 июля, 11:54
anonim-247819 (Санкт-Петербург)
Здравствуйте, похожая ситуация, есть закон о приобретательной давности, разве он к вам не применим? И второе, почему полезли на ваш участок (кадастровый инженер не видел забор или у вас там пустошь заброшенная)?
Закон нужно соблюдать, но ведь он пишется из здравого смысла, почему участок после многих лет должен уменьшиться, тем более всегда стоял забор.
Забор который много лет сам являлся геоточками и определял границы, я так понимаю, вы ведь не делали новый в каждый год?
Богушевский ЯрославГость 247819 3 июля, 18:10
Народный консультант
Добрый день! В этой ситуации с натяжкой можно говорить о приобретательной давности. вопрос стоит об исправлении кадастровой ошибки. Но так как в период межевания участка, о котором идёт речь, не было собственника, соседи воспользовались согласование через публикации в газете. Как суд будет реагировать на этот факт не известно.
Гость 247563-4190 13 июня, 15:41
anonim-247563-4190 (Благовещенск)
Доброе время суток. Ситуация такая, участок под садоводство. План границ выполнен в 2007 году. На плане начерчен участок, на нем вынесены характерные точки. Указаны геодезические данные каждой точки, расстояние между точками, румб, в какой то местной системе координат. На кадастровой выписке контур и площадь участка указана. На публичной кадастровой карте не отображается. Через пару лет сосед с краю сдвигает свой забор на пол метра на наш участок и тоже делает межевание. Его участок тоже не отображается на кадастровой карте. Скорее всего его межевание выполнено так же в старой системе координат. Проблема не была актуальной до тех пор пока не собрались строить дом и нужна правильная граница участка для обеспечения отступов. Есть ли какая то вероятность добиться правды и вернуть свои пол метра участка спустя столько времени? Возможно ли сейчас вынести точки на местность по старой системе координат и если граница будет отличаться от фактической получить свою площадь назад? Спасибо!
Богушевский ЯрославГость 247563-4190 15 июня, 17:23
Народный консультант
Добрый день! Дело не в старой системе координат, Вам нужно измерить площадь участка, если она меньше, чем по документам, то обратиться к кадастровому инженеру для формирования заключения и обращаться в суд для исправления ошибки.
Александр 27 июня, 10:20
aleksandr (Ханты-Мансийск)
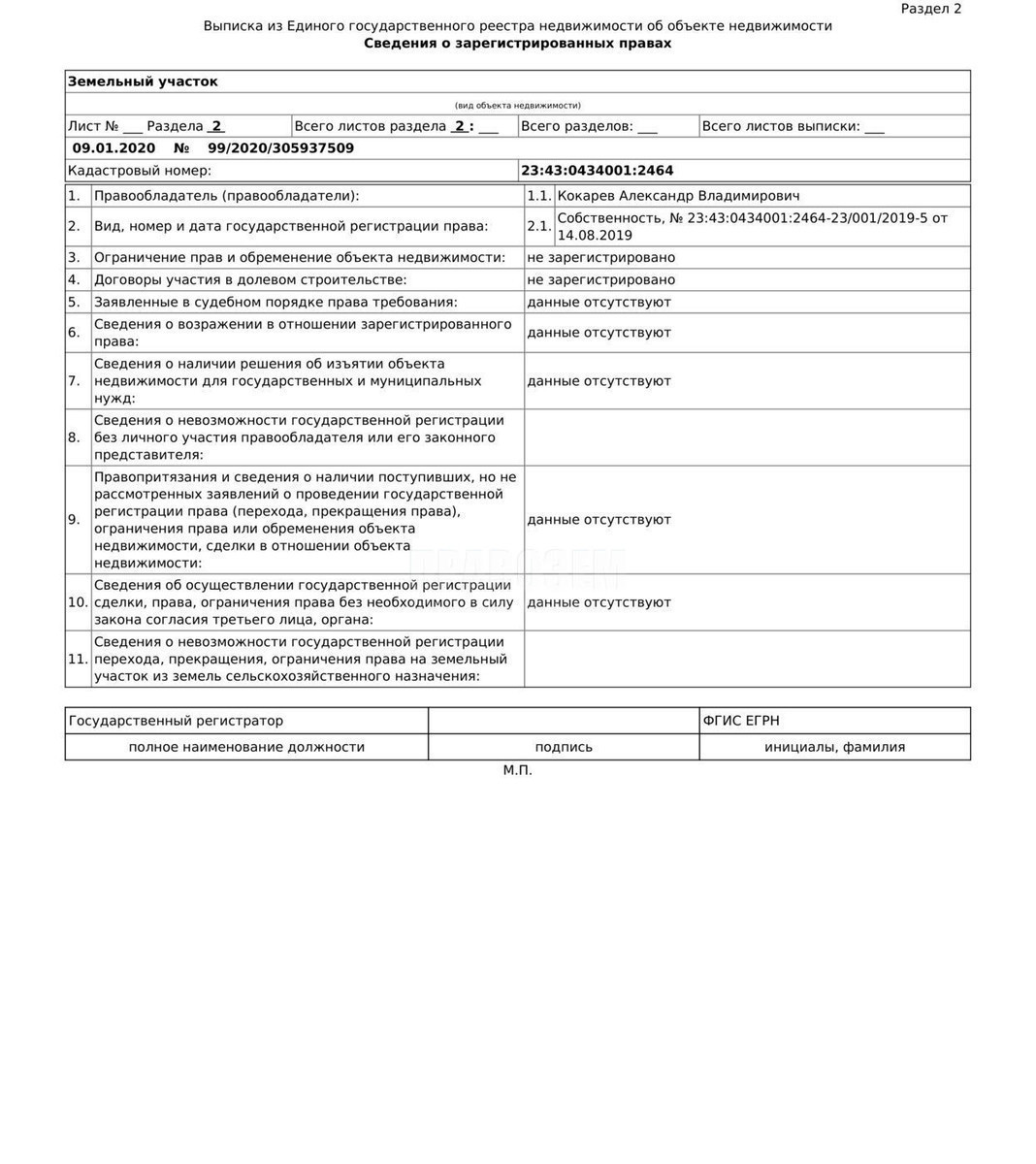
Добрый день я направил в Администрацию Карасунского внутригородского округа уведомление о планируемом строительстве объекта индивидуального жилищного строительства и получил уведомление о недопустимости размещения данного объекта по причине того что участок расположен в зоне рекреационного назначения. Считаю, что при рассмотрении уведомления допущена ошибка так как по утверждённым правилам землепользования и застройки муниципального образования город Краснодар от 28.11. 2017 года№44 земельный участок с кадастровым номером 23:43:0434001:2464 расположен в зоне Ж. 1.2. -зона застройки индивидуальными жилыми домами за границами города Краснодар. Это же подтверждается выпиской из ЕГРН на данный участок, к тому же рядом уже построены дома и соседи по меже уже получили разрешения на строительство
Богушевский ЯрославАлександр 29 июня, 12:50
Народный консультант
Добрый день! Имеется ли у Вас ГПЗУ? Надо понимать на что опирается администрация, вынося Вам такую приостановку.
АлександрБогушевский Ярослав 29 июня, 14:22
aleksandr (Ханты-Мансийск)
Добрый день нет у меня сейчас есть только выписка из ЕГРН и запросил выписку из правил землепользования и застройки и видах разрешённого использования выписку сейчас отправлю. Заранее благодарен.
Богушевский ЯрославАлександр 29 июня, 18:03
Народный консультант
Добрый день! Выписка из ЕГРН не даёт полного представления о территориальной зоне, в которой расположен земельный участок. Необходимо получить ГПЗУ или, как вы уже это сделали, выписку из ПЗЗ.
Гость 247622-4291 30 июня, 17:14
anonim-247622-4291 (Якутск)
Здравствуйте, мы хотели сделать межевание нашего участка. Кадастровый инженер попросил кадастровый номер. Выяснилось что соседский участок (кадастровая схема) лежит прямо на нашей территории, большая половина их участка смещена на нашу сторону, а половина их территории лежит без границы. То есть размеры верный, но смещены на нашу сторону. Еле еле их нашли, они живут далеко. Согласились сделать межевание (кадастры сказали нам что только после соседей мы сможем сделать межевание), но потом отказались оплатить услугу межевания, соответственно дело до конца не доведено (им этот дом не нужен, пустует десятки лет). И что теперь нам делать. Никак нельзя делать межевание участка, с согласия соседей?
Богушевский ЯрославГость 247622-4291 1 июля, 11:15
Народный консультант
Добрый день! Вся линия соседских участков съехала или только один смежный с Вашим?
Богушевский ЯрославГость 247622-4291 3 июля, 10:43
Народный консультант
Добрый день! В вашем случае, исправление кадастровой ошибки коснётся всей линии участков.
Алла 5 июля, 22:18
abv-55 (Санкт-Петербург)
Добрый день! Помогите, пожалуйста, в моем вопросе. Я купила в СНТ участок № 13 со старым домиком 8 соток в 2012 году. Сразу жить не могли там, нет удобств, и построить новый дом сразу не смогли. В это лето решили взяться, приехали и увидела такую картину: соседний участок №14 поделен вдоль забором, и образовался новый участок № 20. Хозяин этого участка при обустройстве своего, залез за черту предполагаемой межи, поставив строение для душа, дом с дощатым подиумом, заходящий на несколько сантиметров за межу. (фото 3). Границы нигде не отмежеваны. Я вызвала кадастрового инженера, он измерил мой участок, и предоставил координаты и размеры моего участка (фото 3). Скажите, пожалуйста, что мне делать и как мне строиться?
Богушевский ЯрославАлла 6 июля, 11:53
Народный консультант
Добрый день! Непонятна Ваша ситуация. Он зашёл за границу Вашего участка? Забора между Вами нет? Чего Вы хотите добиться, какой итог Вы хотите получить?
АллаАлла 6 июля, 17:36
abv-55 (Санкт-Петербург)
Добрый день! Забора между нами нет, и если его строить, то он полностью будет на нашей территории, в результате чего мы потеряем свою площадь. Частями строений, он заступает за границу нашего участка. Не будет ли у нас трудностей с межеванием, не потеряв своей площади? Могу ли я построить в данной ситуации отступив от нашей межи 1 метр для хозпостройки и 3 метра для дома. Будет ли это законно? Как будет проходить наше межевание? Если я отступила от межи он нет?
Богушевский ЯрославАлла 7 июля, 11:50
Народный консультант
Добрый день! Если участок соседа отмежован за счет Вашего участка, то Вы должны перед установлением границ исправить эту ошибку. то есть подготовить межевой план по исправлению кадастровой ошибки. Может строить, но лучше будет в первую очередь решить вопрос с границами. Если по итогу выясниться, что он построил на Вашем участке, то его в судебном порядке обяжут снести постройки.
АллаАлла 7 июля, 15:29
abv-55 (Санкт-Петербург)
Спасибо Вам большое, за вашу консультацию. Кадастровый инженер сказал, что участки не отмежованы. Мы решили строить, соблюдая правила СНиПа.
Богушевский ЯрославАлла 7 июля, 16:28
Народный консультант
Если участки не отмежованы, то спора по факту нет, так как Ваши границы не уточнены.
Гость 247736-4464 1 авг., 20:04
anonim-247736-4464
Доброго дня. Подскажите пожалуйста. Купили участок, категория земель ИЖС, с одной стороны улица, с трех других соседние участки, у участков слева и справа границы уже были отмежованы, стоят заборы. У третьего участка, как и у нашего, границ не было. Мы провели межевание, все соседи подписали, при выносе границ в натуре выяснилось, что котельная и септик третьего участка находятся на нашей территории. При этом, ещё сильно до нас и до нынешней владелица третьего участка между участками был забор, от него только столбы сейчас остались, и по этому забору земля, где стоит котельная, относилась к соседям. Наш Кадастровый инженер не заметила котельную. В итоге соседка подала в суд, требует установить границу чуть дальше фундамента котельной. Её дом оформлен, котельная не оформлена. Провели экспертизу, эксперт пишет что все наши границы определены неверно и это кадастровая ошибка нашего инженера. Можем ли мы победить в этом процессе?
Богушевский ЯрославГость 247736-4464 3 авг., 10:12
Народный консультант
Добрый день! Если экспертиза подтвердила, что ошибка произошла по вине Вашего кадастрового инженера, то врядли суд примет Вашу сторону.
Гость 247484-5215 10 февр., 13:44
anonim-247484-5215 (Подольск)
Здравствуйте, фактические границы участка не совпадают с кадастровой картой, смещение в сторону проезда на 1 метр, могу ли я при строительстве дома сделать отступ от забора до проезда не положенные 3 метра, а 2 м, учитывая свой 1 метр.
Богушевский ЯрославГость 247484-5215 10 февр., 14:18
Народный консультант
Добрый день! Пришлите кадастровый номер Вашего участка.
Гость 247484-5215Богушевский Ярослав 16 февр., 14:03
anonim-247484-5215 (Подольск)
50:27:0020466:78 Здравствуйте, вот номер участка.
Граница смещена в сторону проезда, со стороны дороги все совпадает.
Богушевский ЯрославГость 247484-5215 16 февр., 15:31
Народный консультант
Добрый день, вы проводили вынос точек в натуру с геодезистом?
Гость 247484-5215Богушевский Ярослав 17 февр., 11:51
anonim-247484-5215 (Подольск)
Да, геодезист установил, что граница смещена на метр.
Богушевский ЯрославГость 247484-5215 17 февр., 12:58
Народный консультант
Добрый день, при формировании вашего технического плана на строение, будет производится геодезический обмер с координированием и последующим наложением на кадастровый план территории для выяснения соответствия отступов, в том числе. В КПТ учитывается не нахождение забора, а координаты, по которым отмежеван ваш участок. Важно соблюсти эти отступы при строительстве, чтобы избежать проблем в регистрации строения. Рекомендую сделать вынос точек в натуру под фундамент, чтобы у вас была уверенность в соответствии. Наша компания предоставляет данные услуги, также как и весь комплекс по оформлению и регистрации. Обращайтесь- будем рады помочь.
Богушевский ЯрославГость 247575-5248 17 февр., 16:19
Народный консультант
Добрый день, готовы Вам помочь привести всё в соответствие. Напишите на нашу почту pravo@pravozem.ru кадастровый номер участка с сохранением вопроса и Ваш контакт для детальной консультации.
Гость 247692-5283 22 февр., 20:41
anonim-247692-5283 (Сыктывкар)
Добрый день! В 1999 г. выделен участок под ИЖС площадью 1000м2 Границы выставлены специалистом администрации в соответствии со схемой к разрешению на строительство. Получено свид. О собственности. В 2020году заказаны кадастр. Работы для получения строит. Паспорта с целью взятия в собственность жилого дома, так как старое разрешение уже недействительно (как пояснили в администрации). Межевание провели по установленному забору, который был поставлен согласно схемы к строит. Паспорту 1999 г. При межевании выяснилось, что границы участка по схеме к строит. Паспорту образуют площадь 1140м2 плюс еще 60м2 добавлено при установке забора вместе с соседом. Итого 1203 м2 Администрация района не согласовала Межевой план, указав на наличие черезполосицы с соседямии и к тому же выяснилось, что часть выделенного нам участка, там где построена баня на фундаменте (нижняя часть участка), отмежевана в земли общего пользования. Такая ситуация сложилась ввиду того, что соседи отмежевали свой участок выше границы нашего участка, и не по забору между нами, а допустив черезполосицу, о чем сами они узнали об этом от нас, так как полностью используют участок, а забор их установлен еще дальше нашего (ниже). Таким образом наш участок выходит за границы вдоль дороги относительно соседей. В администрации нам посоветовали обратиться в суд, так как они понимают, что мы правы в требовании сохранить границы и расположение участка согласно схемы 1999года, но по закону не могут на это пойти. А 60м2 мы согласны выкупить, либо установить границу 1999г так, чтобы баня осталась на нашем участке. Вопрос:как правильно изложить свои требования в иске. Просить утвердить его по точкам межевания согласно схемы 1999 года и в площади 1140, либо 1203, как забор стоит (сослаться на возможность претендовать на 10процентов от 1140кв. М) И нужно ли направлять копии межевого плана для уведомления ответчика о подаче иска (нам межевой не вернула администрация).
Богушевский ЯрославГость 247692-5283 25 февр., 11:04
Народный консультант
Добрый день! Межевание проходит по забору, соответственно Вы можете требовать установления границ с площадью 1203 кв.м. (площадь не превышает 10%) Да, нужно направлять копии всех документов которые Вы направляете в суд с исковым заявлением.
Гость 247692-5283Богушевский Ярослав 25 февр., 18:36
anonim-247692-5283 (Сыктывкар)
Спасибо!
Гость 247615-5668 12 мая, 16:55
anonim-247615-5668 (Кострома)
Добрый день. Приобрела в собственность дом в деревне. Соседи сразу построили новый сарай на нашей границе. Границы не уточнены. Сейчас обратилась к кадастровому инженеру и выяснилось, что ширина моего участка меньше, чем в экспликации на 2метра по переднему краю, как раз в том месте где стоит новострой. Инженер готовит акт согласования границ по фактическим, хотя они не верны. Могу ли я на стадии подготовки акта исправить границу? Если на земле стоит чужой новострой?
Богушевский ЯрославГость 247615-5668 12 мая, 18:07
Народный консультант
Добрый день! Какая площадь по документам и по забору?
Гость 247615-5668Богушевский Ярослав 13 мая, 16:07
anonim-247615-5668 (Кострома)
Добрый день. По документам 2400 КВ. М Кадастровый инженер нарисовал схему с меньшей шириной по фасаду, но с большей длиной (так так за участком свободная земля), что бы выйти на площадь как в документах. Согласно экспликации ширина участка 23 м По данным замера инженера 20.5.
Богушевский ЯрославГость 247615-5668 13 мая, 17:46
Народный консультант
Добрый день! Если Вы хотите вернуть границы как в ранее выданных документах, Вам необходимо снять границы соседа, если сосед будет не согласен, то необходимо обратиться в суд.
Гость 247716-6597 10 апр., 19:19
anonim-247716-6597 (Мурманск)
Ситуация в следующим. В нашем дворе стоят 4 одинаковых дома. У троих из них одинаково маленькая придомовая территория. Согласно кадастровой карте. У четвертого дома территория огромная. 4200 кв м В итоге, этот 4й дом воспользовался ситуацией и выставил заборы и шлагбаум, чтобы сделать себе огромную парковку. То есть весь двор фактически принадлежит одному дому. Допуск соседям закрыт. Таким образом, остальные 3 дома бросают авто в других дворах и на проезжей части. Вопрос в следующем: Каким образом произошло такое неверное межевание. Что один дом получил огромную территорию, а остальные ничего? Как исправить кадастр и поровну поделить придомовую землю между 4 домами?
Богушевский ЯрославГость 247716-6597 11 апр., 18:55
Народный консультант
Добрый день, Ваш участок межеван?
Гость 247585-6668 4 мая, 16:05
anonim-247585-6668 (Сочи)
Здравствуйте, вызвали инженера и геодезиста, по замерам вышло, что пол сотки нашей земли находится за железобетонным забором соседа. Хотим начать стройку, ждать решения суда долго, хотим сами разломать его забор, забрать свой кусок и поставить новый, по границам. Что в этом случае нас ожидает, административное наказание, в виде штрафа?
Богушевский ЯрославГость 247585-6668 4 мая, 16:55
Народный консультант
Добрый день, рекомендую написать жалобу в Росреестр о самозахвате Вашего ЗУ соседом, по поступлению и обработке заявления государственные инспекторы по использованию и охране земель должны провести проверку и в случае подтверждения нарушения выдадут нарушителю предписание о его устранении, а также составят протокол об административном правонарушении. Если решитесь сами делать Административное наказание со штрафом будет однозначно, так же сосед может подать в суд возмещение ущерба, за порчу имущества.
Гость 247585-6668Богушевский Ярослав 4 мая, 17:00
anonim-247585-6668 (Сочи)
Спасибо большое, за развёрнутый ответ.
Лариса 13 мая, 12:23
let1509 (Москва)
Добрый день! До объединения Московской области с Москвой в нашей деревне были одни координаты. Стала Москва и мы узнали, что участок наш смещён на 17 м2 к соседу. Как быть в этой ситуации? Своей вины мы не видим. Спасибо.
Богушевский ЯрославЛариса 13 мая, 13:27
Народный консультант
Добрый день, координаты остались те же что и были при межевании участка? Смещение произошло в пользовании или на кадастровой карте.
Гость 247453-6868 7 июля, 15:23
anonim-247453-6868 (Москва)
Добрый день! На кадастровой карте участок нарисован в два раза больше, чем указано в документах. Там указана декларированная площадь 4 сотки. По факту же участок около 8. Когда покупали участок он был обнесен забором, который простоял лет 15 точно. Перед капитальным строительстом хотим сделать межевание. Есть ли какие нибудь варианты как увеличить официально участок? С СНТ проблем не будет, в ту сторону куда хотим увеличить соседей нет.
Богушевский ЯрославГость 247453-6868 8 июля, 11:06
Народный консультант
Добрый день, для образования земельного участка необходимо провести процедуру межевания, для более подробной консультации, пришлите на почту kuv@pravozem кадастровый номер ЗУ с сохранением вопроса.
Лена 10 сент., 10:38
xlenav (Уфа)
Здравствуйте. Сделали межевание и оказалось, что постройки и забор находятся на соседском участке. Дом построен еще в 1965 г. Сейчас сосед хочет оформить нашу баню в свою собственность, так как по кадастру она находится у него. Что нам в данном случае делать?
Богушевский ЯрославЛена 11 сент., 22:51
Народный консультант
Добрый день, для регистрации строения, необходимо выкупить у соседа часть земельного участка, либо сделать перераспределение, обратитесь к местному кадастровому инженеру, который подготовит подходящую схему учитывая нормы ПЗЗ по Вашему району.
Гость 247770-5276 3 мая, 14:59
anonim-247770-5276 (Санкт-Петербург)
День добрый Ярослав. Подскажите как поступить. Поставили забор на участке по размерам кадастра и отметкам которые установили при межевании. Затем соседний участок был куплен и соседи провели межевание, которое показало что мой забор заходит на соседний участок на 0.45м в нижней точке и на 1.25м в верхней. Межевание проводил один и тот же инженер, который объяснил, что в 2019-2020 г. произошел переход с местных координат на федеральные и получился сдвиг координат участков. И получается что мне теперь надо переносить забор или договорится с соседями о том что они не возражают? Вопросов два : как правильно оформить проблему если соседи согласны ; если соседи не согласны, то в суде я могу отстоять свои права, так как новые координаты установлены позже того, как я поставил забор?
Богушевский ЯрославГость 247770-5276 6 мая, 10:32
Народный консультант
Добрый день. Вы можете исправить реестровую ошибку через межевание, т.е. заново сделать съемку участка по фактическому пользованию и внести новые координаты в ЕГРН.
Гость 247664-5362 8 мая, 09:19
anonim-247664-5362 (Москва)
Здравствуйте. КИ соседей провел межевания без уведомления нас, как владельцев смежного участка. В газете публикаций не было, также как и писем. Участок соседа зарегистрирован без моей подписи в акте. Также КИ урезал мой участок не по смежной границе, а со стороны дороги, где их интересы не затронуты. При этом он в документах оставил ту же площади и конфигурацию, изменив погрешность с +/- 1 на +/- 155. Допустимо ли увеличивать погрешность в 155 раз, нормально ли уменьшать участок на плане за ее счет и какие мои действия будут правильными? Спасибо.
Богушевский ЯрославГость 247664-5362 8 мая, 12:49
Народный консультант
Добрый день. Вы можете оспорить результаты межевания соседнего участка в судебном порядке, а также написать жалобу в СРО на кадастрового инженера, т.к. процедура согласования границ между смежными участками является обязательной.
Гость 247664-5362Богушевский Ярослав 14 мая, 09:26
anonim-247664-5362 (Москва)
Здравствуйте, я получила ответ из Росреестра, в нем ссылаются на то, что КИ исправлял реестровую ошибку, я якобы была уведомлена, но не выразила никаких возражений. В таком случае согласие правообладателя не требуется. Отменяет ли исправление реестровой ошибки согласование границ? Соседнего участка вообще на кадастровой карте раньше не было, а наш был.
Богушевский ЯрославГость 247664-5362 14 мая, 09:51
Народный консультант
Добрый день. При исправлении реестровой ошибки также необходимо подписание акта согласования границ. Это делается лично или через публикацию объявления в газете с почтовым уведомлением . В случае, если считаете, что при исправлении реестровой ошибки нарушены Ваши права, то можете оспорить в судебном порядке.
Гость 247467-6292 10 окт., 13:46
anonim-247467-6292 (Москва)
Добрый день. Помогите разобрать в ситуации. Сосед требует перенести забор в соответствии с новыми координатами. Нашим участкам более 50 лет, забор на участке менялся частично (по мере сгнивания столбов), но уже более 20 лет назад. По плану все строения мои находятся на моем участке. Межевой план с актом межевания соседом подписан в 2003 г. В последние 5 лет сосед требует от меня возврата ему части земли, которая якобы была по их согласованию устному с моим отцом (он умер в 2007 году) строения -обложенный кирпичем насыпной погреб построены так, что по ширине на 40 см якобы на его территории. Его гараж-кухня построена в одно и тоже время с нашим погребом-сараем и вплотную примыкают друг к другу, и по факту сейчас находятся на одной меже. Ранее споров по этому участку межи не возникало с их стороны., но сейчас он требует возврата этой земли. Вынос границ КИ по новым измененным координатам общей границы показали, что часть моих строений оказалась на его участке. КИ (приглашенный соседом) в моем присутствии поставил колья на моем участке, где должна пройти новая общая граница. КИ не оставил никаких актов о проделанной работе. Я ничего не подписывала. А на вопрос Где акт, мне ответили он есть, но мне его не дадут, так как КИ они вызывали за свой счет. Но сосед требует перенос забора по этим кольям. Я в прошлом году пригласила для уточнения границы КИ из Центра по землепользованию, что подтверждено договором работ, снимка наложения границ наших участков, где КИ показал как и где идет наложение. Сосед считает, что я должна выполнить ЕГО требования и мнение КИ их не интересует. Я еще раз уже сейчас пригласила КИ, чтобы теперь были выставлены по координатам в его присутствии точки границы участка. У меня вопрос. А если и сейчас мои строения окажутся на его стороне, но по плану они МОИ! что делать? И если он не подпишет акт о общей границе участка. Он грозится судом.
Богушевский ЯрославГость 247467-6292 11 окт., 10:46
Народный консультант
Добрый день, сложная ситуация, если суд установит наличие объектов на земле соседей скорее всего обяжут частично демонтировать, но при наличии встречного иска о выкупе и перераспределении земли, возможно у Вас получится обоюдно договориться с соседом.
Евгения 5 янв., 21:42
sdoma22 (Москва)
Добрый день! Я приобрела участок 11.11. 2023 г. с дальнейшим строительством на участке жилого дома. После сделки бывший собственник сообщила, что части участка находятся в праве пользования и часть участка в самозохвате соседями. Для того чтобы построить дом правильно в своих границах и зарегистрировать дом потом без проблем, я заказала в администрации города градостроительный план зимой в 2023 г. И оформила право пользования землей в МУГиСО. Далее весной 2024 г. вызвала геодезиста для выноса точек в натуре по моему кадастровому номеру66:41:0607006:0031. Специалист установил, что по одной части забора соседа граница идет верно, а вот по второй противоположной стороне соседский забор (кадастровый номер 66:41:0607006:0039), установлен с нарушением и присутсвует самозахват моей границы участка. Далее я сразу сообщила, об этом этим соседям, о ситуации. С начало они сказали, что они не против, что освободят территорию, но только фундамент я должна убирать этого забора. Выяснила, что забор устанавливал сосед и без суда я его трогать не могу. Подала летом 2024 г. соседям досудебную притензию, и выжитала срок который они просили на освобождения участка до осени. Но, осенью 2024 г. мне пришел иск со стороны соседей о признании моих точек границ участка не действительными. При этом мои законно купленные 14 соток, фактически уменьшаются почти на 1 сотку (так как по результатам геодезии 70м от столбаграницу мерил, но еще на моей части установлен без согласования забор с фундаментом по всей длинне 40 см.), что нарушает мои права. При этом сосед себе делает с 14 соток 17, прихватизируя мою 1 сотку и муниципальную часть. Разбираясь в ситуации, которая нарушает мои интересы, как добросовесного покупателя и собственника. Я узнала, что несмотря на то, что в иске соседи пишут, что забор установил собственник который продал им участок. На самом деле это не так, есть свидетели, что забора не было. И, что мой бывший собственник (который умер и у него не узнать) как раз боролся с нынешними собственниками по поводу забота который соседи установили. Есть информация от старожилов, что мой собственник жаловался в инстанции/фотографировал пытался бороться с самозахватом территории своего участка, так как межевание было в 2002 году и отступ к постройке (которая существует на сегоднишний день) есть. так как он придусмотрел проход к своей постройке, чтоб доступ был со всех сторон и для тех. обслуживания здания и соблюдения норм. Благодарю за всю информацию, которую вы укажете в ответе или напишите как действовать на практике в таких ситуациях. У соседей межевание было в 2007 г. Где подписали соседи согласие с границей. И закрепили точки колышками, забора по моей границы не было.
[вложенный файл].Богушевский ЯрославЕвгения 9 янв., 13:31
Народный консультант
Добрый день, Вам необходимо написать встречное исковое заявление о признании Ваших границ верными и просить перенести забор соседа на границу Вашего земельного участка. Приложите все документы, которые есть в Вашей доказательной базе.
Гость 247848-7324 4 апр., 00:15
anonim-247848-7324 (Ростов-на-Дону)
Добрый день. Помогите разобраться с ситуацией. Есть улица в СНТ. Буквально на 20 участков по одной стороне. На эту улицу есть заезд с двух сторон (далее -слева и справа) мой участок находится чуть правее середины. Мой участок 600м2 по документам имеющий правильную форму 20/30м Мною был установлен забор по вынесеным точкам в натуру в прошлом 2024г с минимальной погрешностью порядка 5см. Координаты были взяты из расширенной кадастровой выписки. Появляется новый собственник заброшенного участка который находится левее меня. И заявляет что я ЗАХВАТИЛ у него 2метра земли по почти всей длине. У соседа есть наложение его участка на мой поворотом всего участка. В файле будет видно. Участки за соседом пустые. А которые построены или имеют заборы смещены правее, тоесть в мою сторону на метр или более. Как быть в данной ситуации ведь сосед угрожает судом и говорит чтобы я сносил свой забор и он поставит свой. Тем самым уменьшив мне фасад с 20 до 18м. И сократив площадь с 600м2 до 550. Напомню в документах у меня 600м 2 и забором огорожено тоже 600м2 Может ли данное наложение соседнего участка на мой отобрать у меня часть земли?
Богушевский ЯрославГость 247848-7324 7 апр., 15:42
Народный консультант
Добрый день, Вашей вины в смещении участка нет, для того что бы привести границы в соответствие с забором, необходимо всей линии уточнить границы по соглашению.
Гость 247745-7446Богушевский Ярослав 9 апр., 19:53
anonim-247745-7446 (Москва)
Получается соседу слева нужно скооперироваться со всеми соседями левее меня и сделать условно межевание, верно?
Богушевский ЯрославГость 247745-7446 10 апр., 10:25
Народный консультант
Верно, только так можно избежать уменьшение площади участка
Гость 247745-7446Богушевский Ярослав 10 апр., 13:51
anonim-247745-7446 (Москва)
Но при этом если они захотят подать в суд, то я могу потерять часть земли своей верно?
Богушевский ЯрославГость 247745-7446 11 апр., 14:25
Народный консультант
все на усмотрение судьи, после заключения эксперта
Гость 247639-8148 18 сент., 17:56
anonim-247639-8148 (Санкт-Петербург)
Здравствуйте! Я являюсь владельцем земельного участка в СНТ на основании свидетельства о праве на наследство по закону. Сосед решил межеваться. Ранее межевание в координатах не проводилось. Участки получены в 1988 г. В процессе подписания акта согласования межевого плана земельного участка, выявились расхождения в фактических границах, указанных в межевом плане, и границах, установленных в кадастровом реестре. Разночтения стали причиной спора с соседним собственником по поводу части участка, которая используется мной, а по утверждению соседа, является частью его собственности. Несмотря на попытки урегулировать ситуацию мирным путем, достигнуть соглашения не удалось, и сосед продолжает претендовать на часть участка, отгороженного от его участка забором, возведенным им же более 20 лет по устному согласованию с моим папой, умершим в 2006 г. Согласование требовалось соседу, так как забор был установлен по внешнему от занимаемой им территории краю канавы, которая служила границей между нашими участками. Я тоже провела процедуру межевания, в ходе которой выяснилось, что площадь спорного участка составляет 20 м (полоска вдоль забора шириной от 50см до 1.4м). Моя фактическая площадь участка больше декларируемой площади, сведения о которой содержатся в Едином государственном реестре недвижимости в 600 м и составляет 620 м Фактическая площадь участка соседа составляет 1180 м, что меньше декларируемой площади в 1200 м, сведения о которой содержатся в Едином государственном реестре недвижимости. Подскажите, пожалуйста, есть ли у меня перспективы отстаивания своей позиции в суде? С уважением, Татьяна. Заранее благодарю за ответ!
P. S. Вся площадь указана в квадратных метрах. Участки зарегистрированы без указания координат.
И еще, За давностью лет от той межевой канавы, о которой идет речь, осталось лишь устье, которое наш инженер-геодезист зафиксировал на фото. Канава, находясь на территории соседа, не обслуживалась, являясь дренажем. От части, из-за этого наш участок подтоплялся во время весеннего таяния снега. Потом я сделала на участке дренаж и подняла всю землю на участке. В том числе, и на этих злощастных 20 квадратах, естественно, тоже.
Богушевский ЯрославГость 247639-8148 19 сент., 20:01
Народный консультант
Здравствуйте, Татьяна! Вы описали очень типичную для СНТ ситуацию: старые бумажные границы без координат, фактическое использование земли десятилетиями и спор после проведения межевания. --- На что суд будет смотреть в первую очередь 1. Документы о праве собственности. У вас и у соседа право зарегистрировано, но без координат. То есть юридически границы не уточнены. Это значит, что пока нет жёсткой привязки к точкам на местности, и вопрос может решаться через уточнение. 2. Фактическое пользование. Суд учтёт, что: забор стоит больше 20 лет; он был согласован устно с вашим отцом; граница фактически воспринималась сторонами именно так. Это можно рассматривать как сервитут или сложившийся порядок пользования, а также как элемент приобретательной давности (если бы речь шла о собственности на спорную часть). 3. Площадь участков по ЕГРН и фактическая. У вас плюс 20 м, у соседа минус 20 м. Это небольшая разница, и для суда она не критична. Но важно, что баланс сошёлся: ваш плюс = его минус. 4. Естественные границы. Канавы, дороги, заборы и другие природные или искусственные рубежи традиционно учитываются судами как фактические ориентиры старых границ. Фото и свидетельские показания могут сыграть в вашу пользу. 5. Заключение кадастрового инженера. Суду нужны технические материалы: межевые планы, акты согласования, фотофиксация. --- Перспективы отстаивания позиции Есть шансы. Суд вполне может признать границу по сложившемуся забору (особенно учитывая его давность и устное согласие прежнего собственника). Но нет гарантии. Суд может и встать на позицию исправить границы по ЕГРН и площади, то есть обязать вас отдать эти 20 м соседу. --- Что усилит ваши позиции 1. Свидетели. Соседи по СНТ, которые подтвердят, что забор стоял именно так всегда. 2. Фото/документы. Сохранившиеся старые планы, схемы, фото канавы, заборов. 3. Экспертиза. При споре суд назначает землеустроительную экспертизу важно, чтобы ваш инженер подготовил качественные материалы. 4. Аргумент о давности пользования. Более 20 лет фактическое использование по согласованной границе. --- Что можно ожидать Оптимальный исход для вас: суд признает границу по фактическому забору и закрепит эти 20 м за вами. Компромиссный вариант: суд установит границы иначе, но при этом возможна компенсация или сохранение фактического пользования в порядке сервитута. Худший сценарий: обяжут уточнить границы по старым документам, и участок уменьшится на 20 м. --- Вывод: Перспективы есть, и они неплохие, если правильно собрать доказательства (фото канавы, забор, свидетели, заключение инженера). Главное фиксируйте, что забор стоит более 20 лет, был согласован, а граница воспринималась всеми именно так. Это для суда весомый аргумент.
Гость 247639-8148Гость 247639-8148 22 сент., 12:25
anonim-247639-8148 (Санкт-Петербург)
Здравствуйте, Ярослав! Спасибо Вам огромное за быстрый отклик! Мне понятен план моих действий. Искренне благодарна Вам за внимательное и объективное рассмотрение сложившейся ситуации, четкие рекомендации, данные Вами в ответе на мой вопрос. Хочу подчеркнуть, что вопрос в части постскриптума был сформулирован мной излишне эмоционально. Спасибо, что Вы юридически обозначили этот довод, именно, как фактическое использование земли. Позвольте выразить Вам признательность за то, что Вы делаете очень нужное и важное дело во времена всеобщей коммерциализации и правовой малограмотности. Здоровья! Успехов! С Вашего позволения я обязательно буду рекомендовать Вас своим знакомым, нуждающимся в грамотной консультации.
Богушевский ЯрославГость 247639-8148 23 сент., 10:34
Народный консультант
Здравствуйте! Благодарю Вас за такие теплые и искренние слова. Очень рад, что мои разъяснения оказались для Вас полезными и помогли в непростой ситуации. Ваша благодарность и доверие лучшая оценка моей работы. Вы абсолютно правильно поступаете, стремясь разобраться во всех нюансах самостоятельно это всегда повышает уровень правовой грамотности и уверенности в своих действиях. Обращайтесь в любое время, если возникнут новые вопросы. Буду рад помочь. И, конечно, спасибо за готовность рекомендовать меня знакомым это для меня очень ценно. Желаю Вам здоровья, спокойствия и успешного разрешения всех юридических вопросов! С уважением, Ярослав
Гость 247008-8177 20 февр. 2026, 23:25
anonim-247008-8177 (Уфа)
При вызове геодезиста пом. адвоката дала на подпись акт осмотра по 2025 году, хотя я и запрашиваю границы 2015 года, будет ли это проблемой в дальнейшем, а суде?
Богушевский ЯрославГость 247008-8177 22 февр. 2026, 14:58
Народный консультант
Коротко: сам по себе акт осмотра с датой 2025 года не является проблемой, если вы в иске и экспертизе просите установить границы по состоянию на 2015 год. Но есть несколько важных нюансов. 1. Что означает акт осмотра Акт осмотра это документ, который фиксирует фактическое состояние участка на момент осмотра (в вашем случае 2025 год): существующие заборы строения фактическое пользование землей ориентиры на местности Он не устанавливает юридические границы участка. 2. Почему можно подписывать акт с текущей датой Геодезисты почти всегда делают осмотр по текущему состоянию, потому что: они фиксируют фактическую ситуацию на момент работы далее они сравнивают ее с архивными документами (ЕГРН, межевание, планы, схемы прошлых лет) Поэтому в заключении обычно пишут: фактическое положение на дату осмотра юридические границы по документам (например, 2015 года). 3. Когда могут возникнуть проблемы Проблема может быть, если в акте: написано, что вы согласны с существующими границами указано, что забор является границей участка есть фраза типа претензий не имею Тогда другая сторона может попытаться использовать это в суде. 4. Как правильно подписывать Если акт еще можно исправить, лучше указать рядом с подписью: Осмотр произведен. С фактическими границами не согласен. Требую установления границ по документам (2015 г.). Это полностью снимает риск. 5. Что важно для суда Для суда главным будет: межевой план / кадастровые документы выписка ЕГРН материалы межевания архивные планы заключение эксперта Акт осмотра второстепенный документ. Поэтому: дата 2025 года нормальна, если предмет спора остаётся граница по состоянию на 2015 год.
Гость 247008-8177Гость 247008-8177 11 март 2026, 01:52
anonim-247008-8177 (Уфа)
Спасибо большое за разъяснение. Выписку платную я брала в МФЦ для адвоката, значит там нужно смотреть Межевой план?
Богушевский ЯрославГость 247008-8177 14 март 2026, 20:45
Народный консультант
Да, вы правильно думаете, но в обычной выписке ЕГРН межевого плана полностью нет. Там есть только часть сведений. Объясню, где именно смотреть. 1. Что есть в платной выписке ЕГРН В выписке обычно указано: кадастровый номер участка площадь дата постановки на кадастровый учет дата уточнения границ координаты поворотных точек границ иногда схема участка Вот именно дата уточнения границ чаще всего и показывает, когда было межевание (например, 2015 год). 2. Где смотреть межевание В выписке обратите внимание на раздел: Сведения о местоположении границ земельного участка Там обычно есть: таблица координат точек границы схема участка иногда указание кадастрового инженера Если координаты есть значит участок уточнён (межеван). 3. Где находится сам межевой план Сам межевой план это отдельный документ (обычно 40100 страниц), который хранится: в Росреестре у кадастрового инженера, который делал межевание иногда у предыдущего собственника В выписке его полностью не прикладывают. 4. Что важно для суда по границам Самыми важными документами будут: 1 выписка ЕГРН с координатами 2 межевой план (если есть) 3 акт согласования границ с соседями 4 старые кадастровые данные (если спор про 2015 год) 5. Очень важный момент Если спор идёт о границе 2015 года, то для суда особенно ценны: межевой план 2015 года акт согласования границ, подписанный соседями координаты точек Именно по координатам геодезист потом выносит границы в натуру.
Гость 247008-8177Богушевский Ярослав 23 март 2026, 08:40
anonim-247008-8177 (Уфа)
Брльшое спасибо за помощь.

